Sunlife villas sont heureux d’offrir cette superbe villa de luxe située près de Moraira dans une petite communauté de seulement six villas.
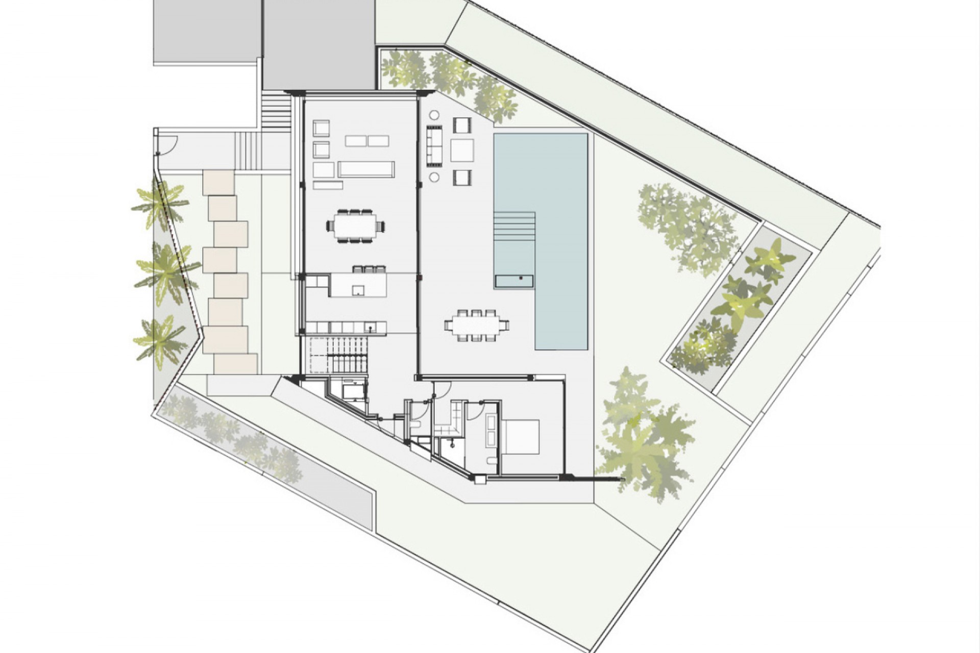
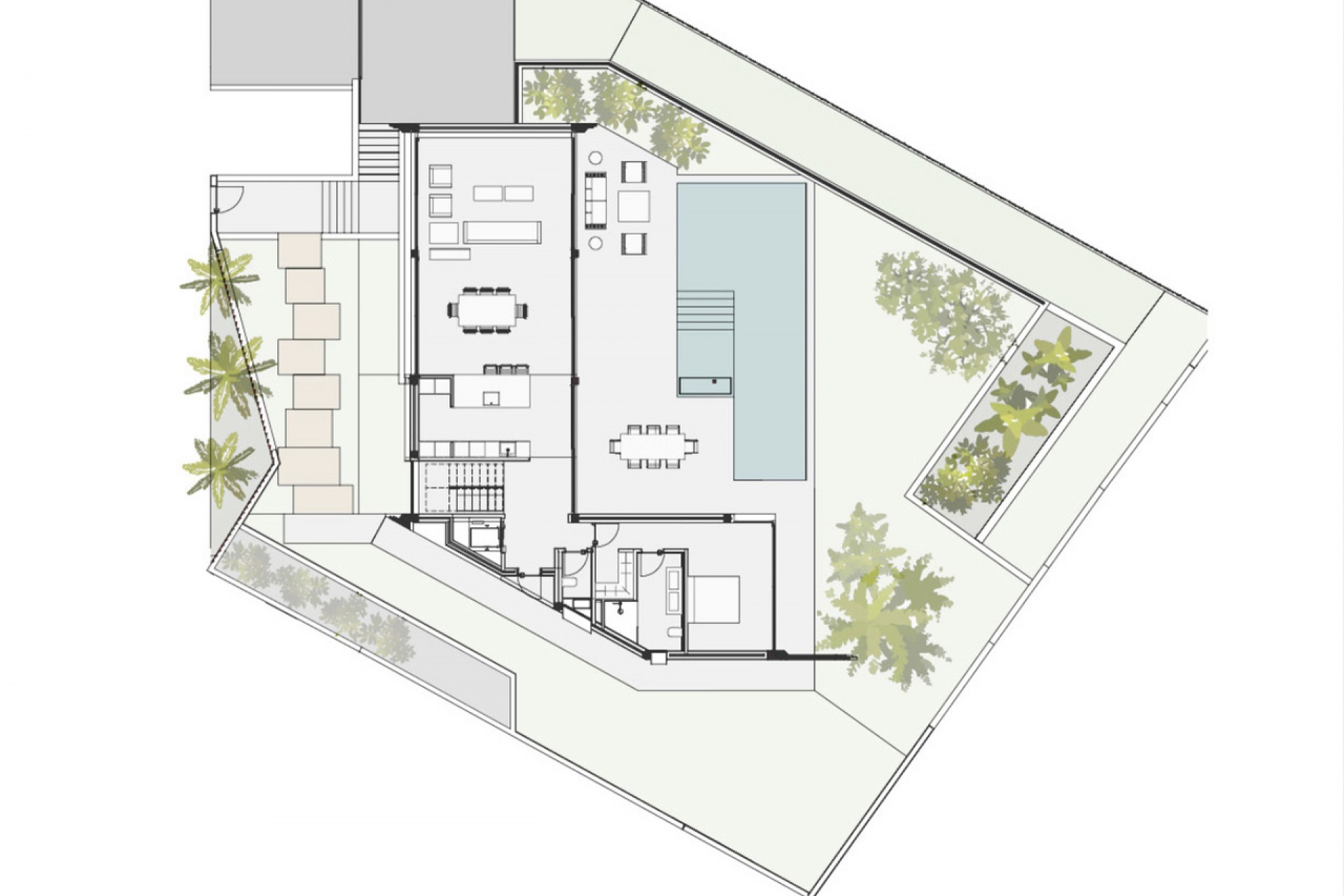
La propriété est d’environ 518m2 répartis sur trois étages et avec un sous-sol ouvert qui offre de la flexibilité. Il y a 60m2 supplémentaires de terrasses couvertes orientées au sud. Le rez-de-chaussée comprend un spacieux salon décloisonné, un coin repas et une cuisine. À ce niveau, il y a une chambre principale avec salle de bains et un dressing, et des toilettes invités. Depuis le salon principal, il y a de grandes portes qui donnent sur les grandes terrasses couvertes orientées au sud et la piscine entourée de jardins méditerranéens.
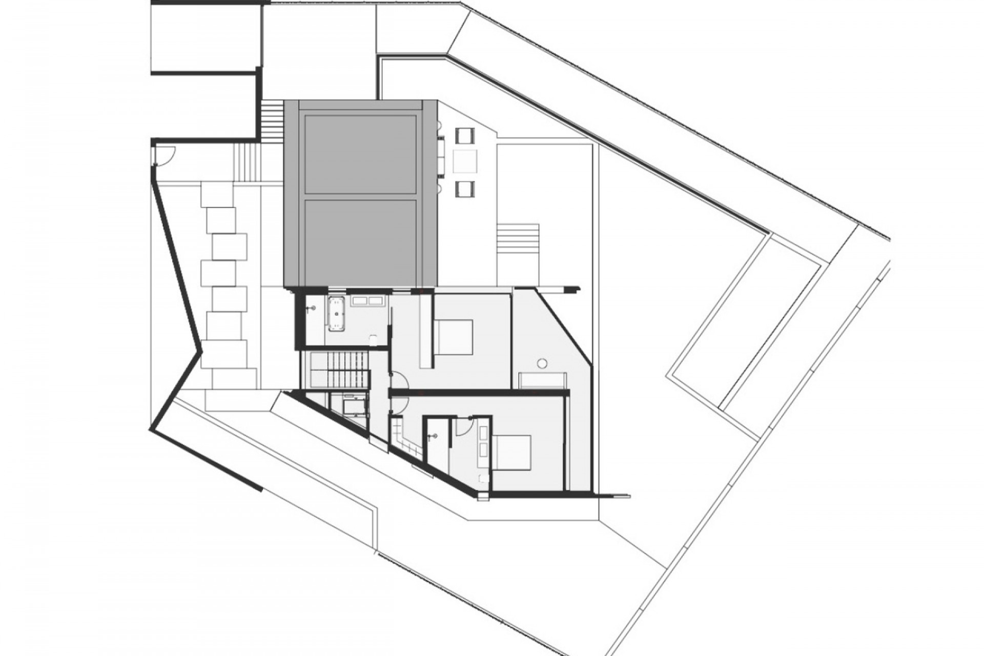
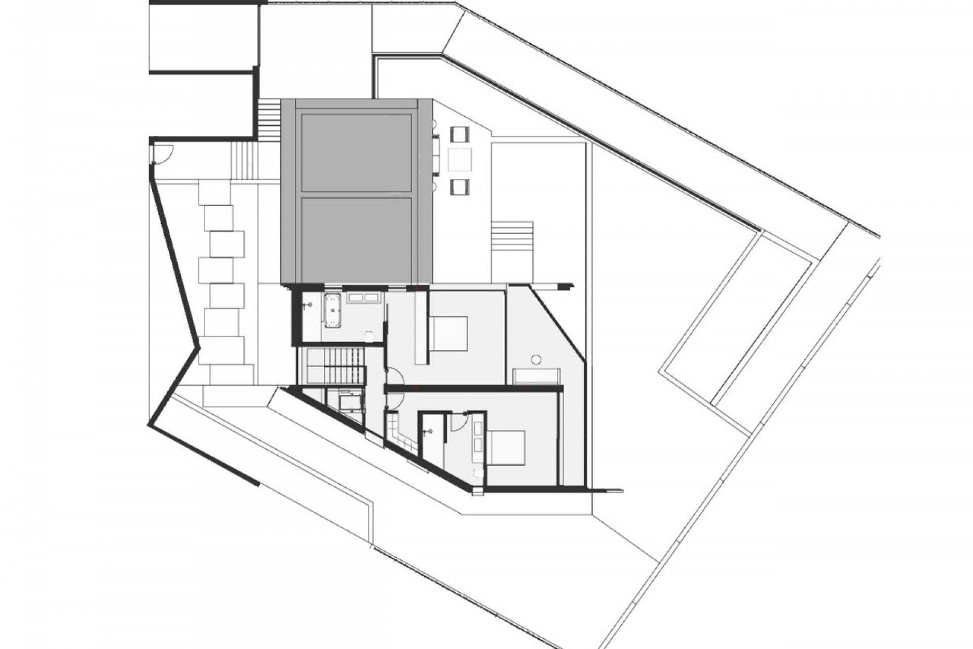
L’étage supérieur comprend deux salles de bains privatives avec dressing et une vue magnifique sur la mer Méditerranée et le Peñon de Ifach.
La villa dispose d’un ascenseur construit attenant à tous les niveaux avec le garage souterrain. Ils sont construits selon des normes élevées, en utilisant les dernières innovations et techniques, établissant de nouvelles normes en matière d’efficacité énergétique, de technologies de maison intelligente, de bien-être, de confort et de considérations environnementales. Les balcons orientés au sud bénéficient de la lumière du soleil toute la journée, tandis que les baies vitrées à triple vitrage maximisent la vue sur la baie. Les panneaux photovoltaïques sur les toits fournissent de l’énergie pour un usage quotidien, les villas étant équipées d’appareils économes en énergie et économes en eau de la plus haute qualité. Les villas sont prêtes à être entièrement équipées d’un système domotique intelligent, qui peut être utilisé à partir de n’importe quel appareil mobile. Le système peut utiliser des paramètres tels que le climat, l’éclairage, la sécurité et bien plus encore.