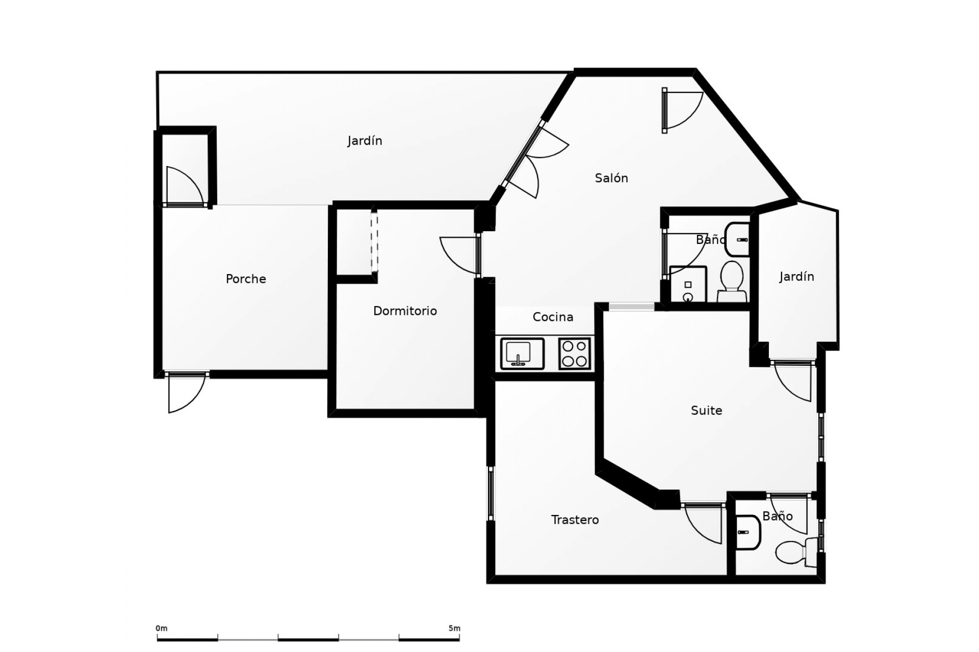
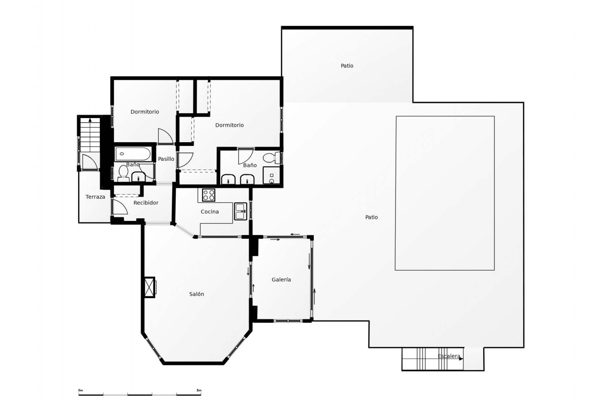
Villa avec maison d'amis à vendre à La Cometa III, CalpeDans le quartier résidentiel tranquille de La Cometa III à Calpe, cette villa indépendante avec maison d'amis est située sur un terrain orienté sudouest. La propriété est répartie sur deux étages et se trouve à moins de 5 minutes en voiture du centreville et de la plage. La villa, avec vue panoramique sur la Bernia, a été construite par le propriétaire actuel et se trouve dans son état d'origine.DescriptionLa maison principale à l'étage supérieur se compose d'un salon qui communique avec une véranda lumineuse donnant sur la piscine et une cuisine ouverte. Il y a également deux chambres, dont une avec salle de bains attenante. La deuxième salle de bains est accessible séparément. Le rezdechaussée est aménagé en appartement indépendant, avec un salon, une cuisine, une chambre, une salle de bains et une pièce supplémentaire qui sert actuellement de cabinet. Cette pièce dispose de ses propres toilettes et entrée, ainsi que l'accès à la buanderie/débarras. La maison est équipée d'un système photovoltaïque (2024), d'un chauffage avec radiateurs électriques, d'une cheminée, d'une pompe à chaleur pour eau chaude, de la climatisation, de double vitrage, de moustiquaires, de murs isolés et d'un système de filtration d'eau.À l'extérieur, il y a une terrasse couverte et une terrasse ensoleillée autour de la piscine d'eau salée automatisée. Le jardin est luxuriant avec des arbres fruitiers, des plantes méditerranéennes et un grand jardin d'herbes aromatiques. L'allée mène à un abri pour deux voitures. De là, il est possible d'accéder à la maison principale sans escalier. ParticularitésSystème photovoltaïque (2024)ClimatisationGrand jardin d'herbes aromatiquesSystème de filtration d'eauEntièrement clôturéPiscine d'eau salée automatiséeMaison d'amis avec ses propres équipementsPourquoi visiter cette villaConvient pour une double occupation ou comme maison d'amisSituation calme et facilement accessibleVilla offrant diverses possibilitésEntrée de plainpied depuis l'abri pour voituresLa villa pourra être occupée fin 2026, début 2027. Le transfert de propriété chez le notaire peut avoir lieu bien avant cette date. Cela pourrait être intéressant pour un investisseur!Cette villa confortable à vendre offre une base solide pour ceux qui recherchent de l'espace, de la fonctionnalité et du potentiel dans un endroit calme à Calpe.Réservez une visite dès aujourd'hui et découvrez les possibilités de cette propriété.Le prix exposé ne comprend pas les taxes et les frais d'achat / L'offre est sujette à des erreurs, des changements de prix, la disponibilité, l'omission et / ou le retrait du marché sans préavis / Le mobilier et le contenu selon accord personnalisé et non selon les photos de présentation