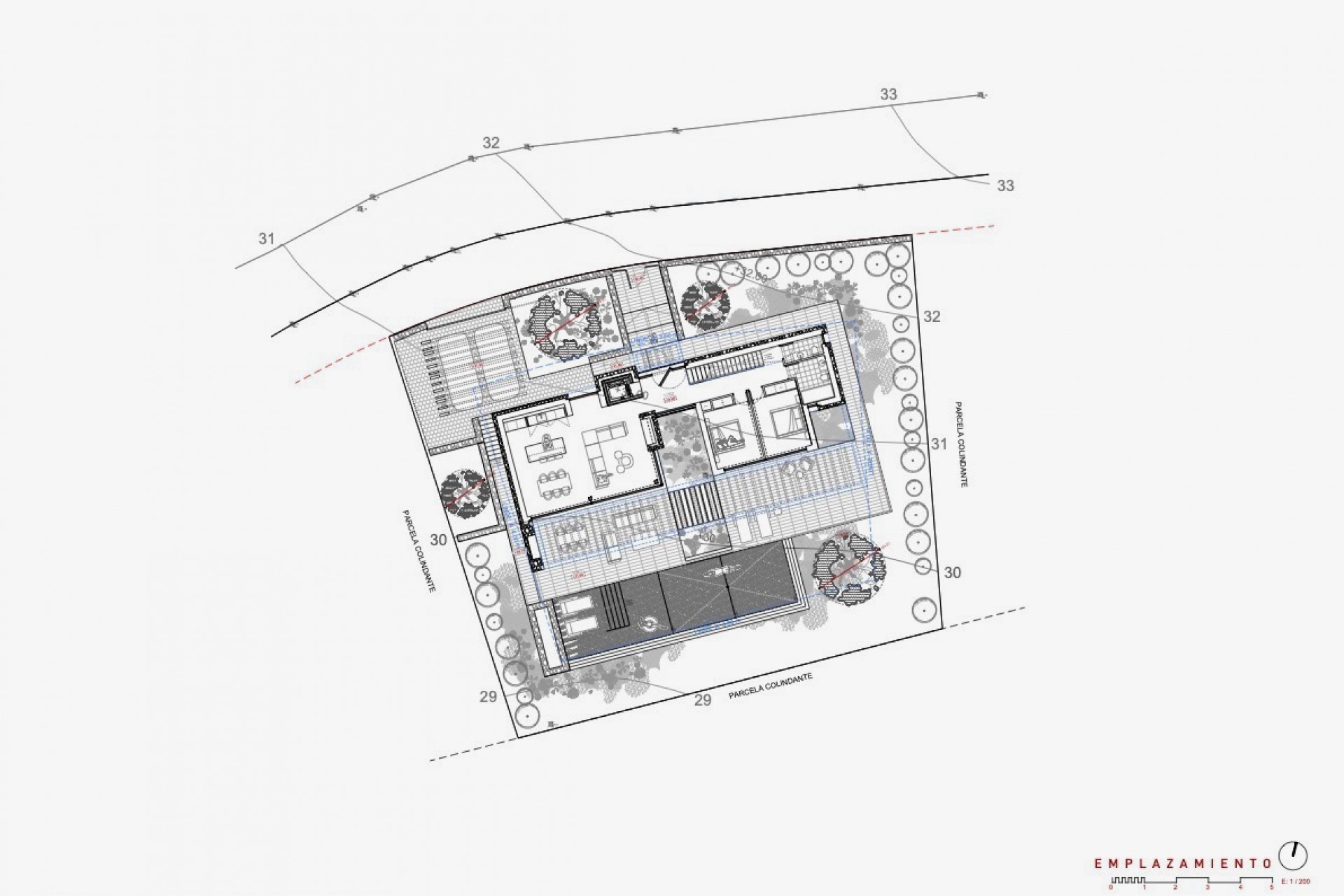
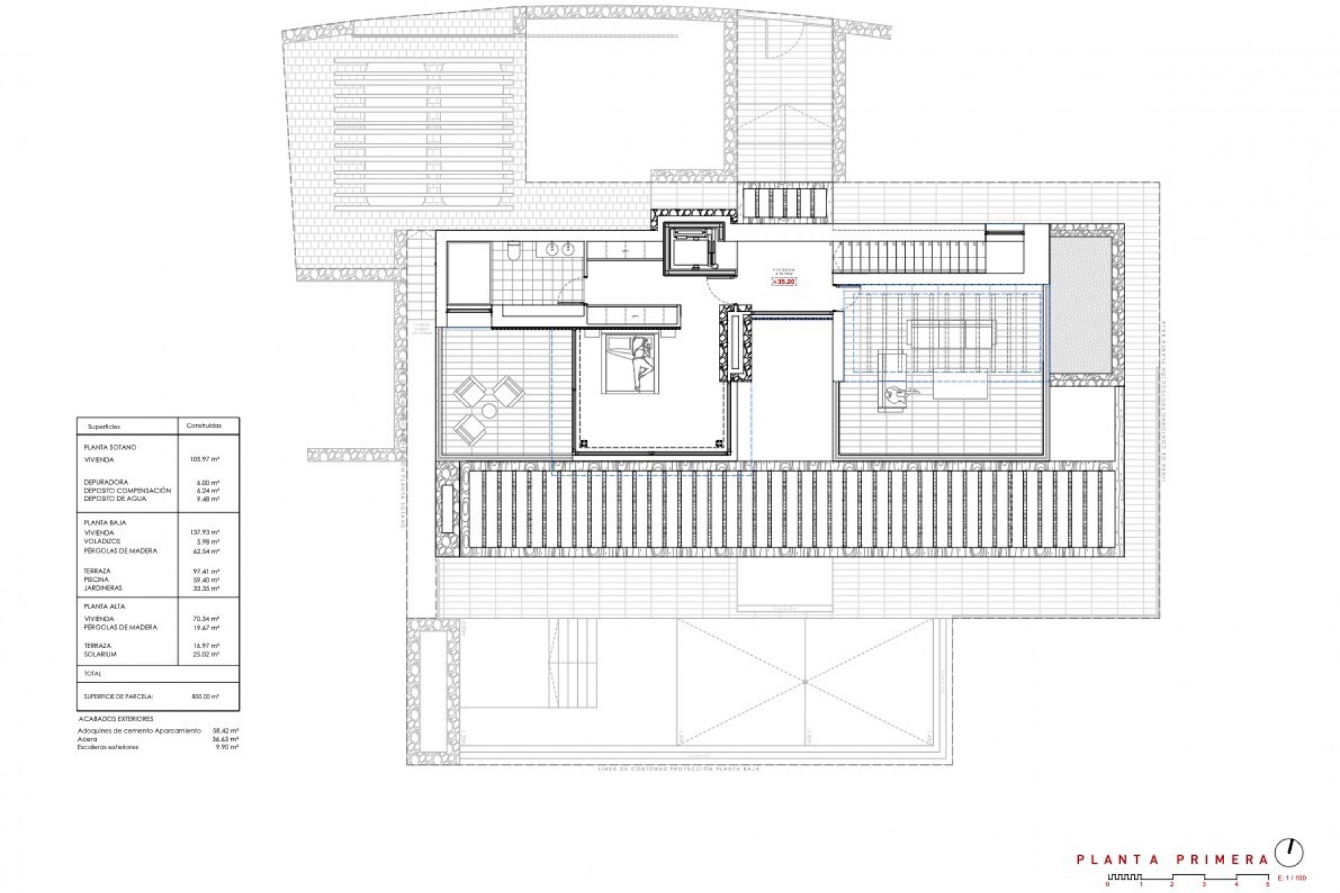
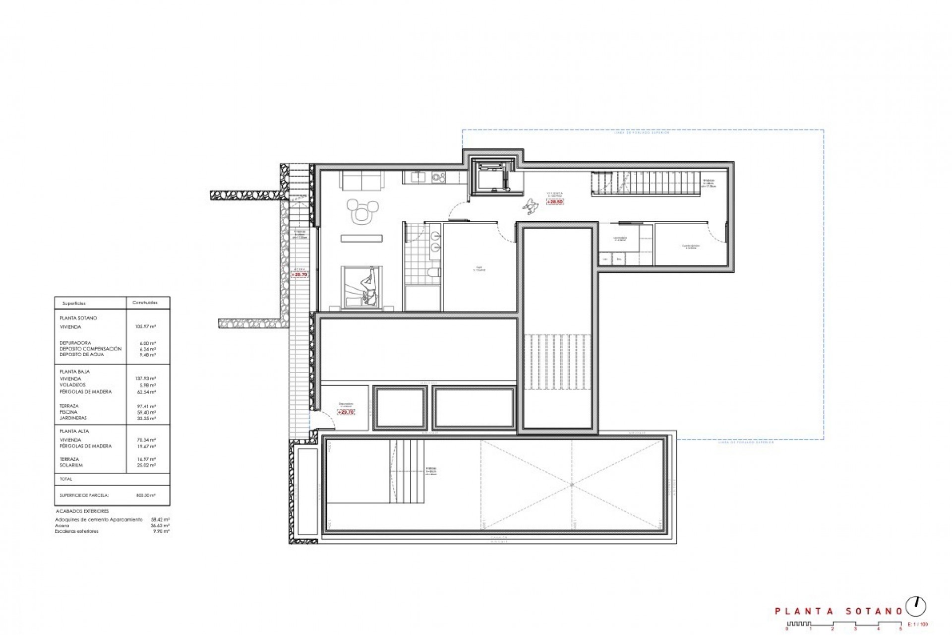
Villa Contemporaine à Vendre à La Fustera, Benissa Costa – Vue Panoramique sur la Mer et Élégance Intemporelle À seulement 300 mètres de la magnifique plage de La Fustera et à proximité immédiate des restaurants, bars et commodités, cette villa neuve combine matériaux naturels, design raffiné et confort moderne. Nichée sur un terrain de 800 m² dans un quartier résidentiel calme, à 800 mètres du parcours de golf, cette propriété orientée sud-est bénéficie de superbes vues panoramiques sur la mer. Construite selon les plus hauts standards, la villa mêle bois chaleureux, pierre naturelle et tons neutres pour créer une atmosphère élégante et accueillante. De grandes baies vitrées inondent les pièces de lumière naturelle et offrent une transition fluide entre intérieur et extérieur. Répartie sur trois niveaux et totalisant 716 m², la partie principale comprend un vaste espace de vie ouvert avec salon, salle à manger et cuisine entièrement équipée, donnant directement sur la terrasse et la piscine à débordement. L’extérieur offre des terrasses couvertes et découvertes, une douche extérieure et des vues spectaculaires sur la mer. Deux chambres doubles, une salle de bain complète et un WC invités complètent ce niveau. À l’étage supérieur, la suite parentale dispose d’un dressing, d’une salle de bain privative et d’une grande terrasse offrant une vue imprenable sur la Méditerranée. Une chambre supplémentaire ou bureau et un solarium complètent cet étage. Le sous-sol abrite une salle de sport, un appartement d’invités, une buanderie et plusieurs espaces de rangement, ainsi que les installations techniques et le système de filtration de la piscine. Équipements : climatisation gainable, chauffage au sol par pompe à chaleur, ventilation mécanique, volets électriques dans les chambres, système d’alarme, portail automatique et ascenseur. La piscine à débordement de 11 × 5 m constitue le point central de l’espace extérieur. Points forts :• Villa contemporaine neuve avec vue panoramique sur la mer• 716 m² construits sur un terrain de 800 m²• 3 niveaux avec ascenseur• 4 chambres, 3 salles de bain + WC invités• Salon, salle à manger et cuisine ouverts• Piscine à débordement 11 × 5 m• Salle de sport, appartement d’invités, buanderie, rangements• Chauffage au sol et climatisation gainable• Pompe à chaleur, ventilation mécanique• Volets électriques dans les chambres• Système d’alarme et portail électrique• Orientation sud-est, à 300 m de la plage et 800 m du golf Une villa d’exception alliant design moderne, confort et raffinement dans l’un des quartiers les plus prisés de Benissa Costa. Contactez-nous dès aujourd’hui pour organiser une visite privée.