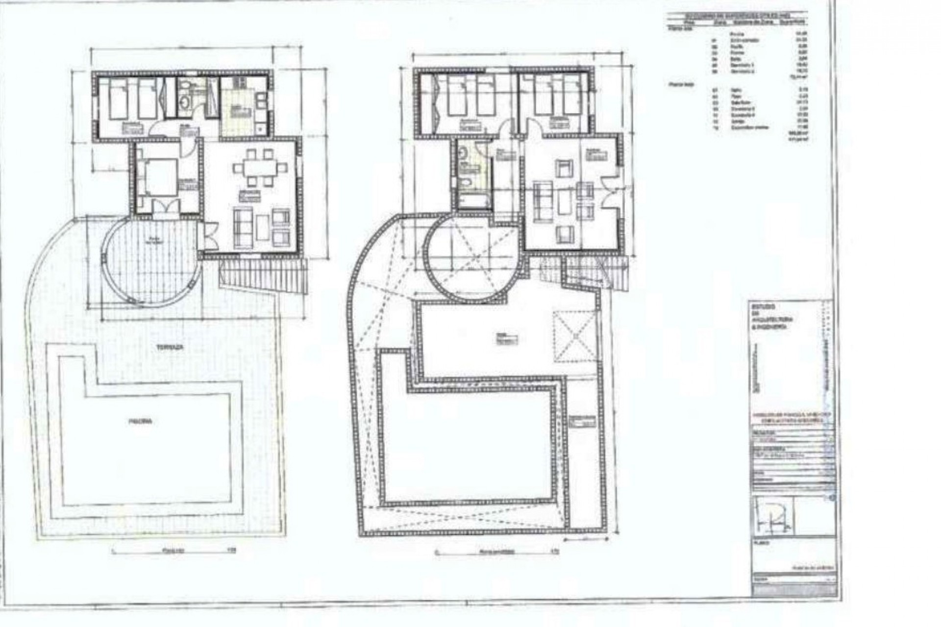
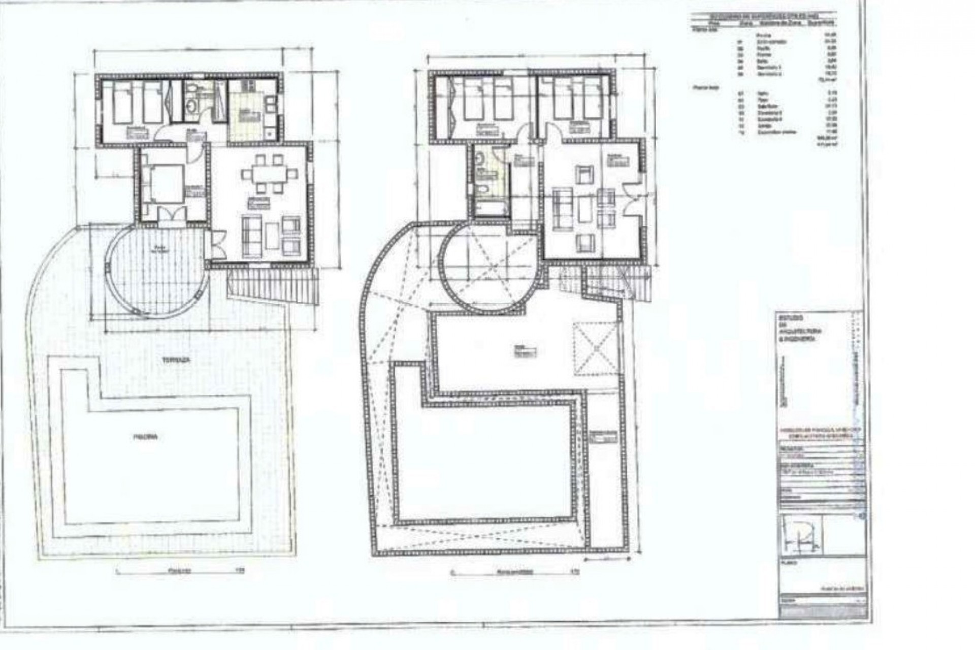
Deze villa (die nu gerenoveerd wordt) ligt in een rustige cul-de-sac, op loopafstand van het strand, restaurants en het centrum. De woning is verdeeld over twee aparte verdiepingen op een perceel met twee niveaus. Je komt binnen via een elektrische poort voor voertuigen op een grote parkeerplaats met garage en carport. Vanaf de parkeerplaats is er een trap naar het terras bij het zwembad en de ingang naar het hoofdwoongedeelte. Je komt binnen via een ronde open naya en dan via glazen deuren in de woon/eetkamer, een ruime kamer met houtkachel en een serveerboog vanuit de keuken. De aparte keuken is voorzien van een gaskookplaat, oven, afzuigkap, vaatwasser van 45 cm en koelkast/vriezer. Daarnaast bevindt zich de badkamer met inloopdouche, badmeubel en verwarming. Aan het eind van de gang is slaapkamer 2, een tweepersoonsslaapkamer met ingebouwde kasten, en aan de linkerkant is de ouderslaapkamer met ingebouwde kasten en glazen deuren naar de naya en het zwembad. Beneden is er een apart gastenappartement op loopafstand van de parkeerplaats. Je komt binnen in een ruime woon/eetkamer met een serveerboog vanuit een apart gedeelte waar een kitchenette wordt geïnstalleerd. Naast de woonkamer is er een slaapkamer met tweepersoonsbed en daarnaast nog een slaapkamer met tweepersoonsbed en ingebouwde kasten. Aan het eind van een kleine hal is de badkamer van het huis met een bad met douche. Het terras bij het zwembad is ruim en privé en het geniet de hele dag zon.
De grote garage bevat de apparatuur voor de zwembadpomp en heeft veel ruimte voor opslag, naast de garage zijn er ook twee grote onontwikkelde kamers die uitkomen op het appartement. De tuin is natuurlijk gelaten op wat fruitbomen na die in de achtertuin zijn geplant.
- Belangrijkste punten:
- Gebouwd 1994
- Huidige eigenaren sinds 2021
-Airconditioning in de twee slaapkamers boven
- Dubbele beglazing boven
- Mogelijkheid voor een interne trap om van de villa één huis te maken
- Verkocht zoals gezien
- Jaarlijkse belastingen 974€ (onroerendgoedbelasting en afvalbelasting)
- Afstanden:
- 1.1km naar strand, minder naar keuze aan restaurants
- 1.2km naar centrum
- 2.1km naar golfbaan
- 8.9km naar snelweg in Benissa
- Werken in uitvoering op dit moment, bijgewerkte foto's met afbeeldingen:
- Boven:
- Airconditioning in woonkamer
- Keuken wordt gerenoveerd
- Beneden:
- Muren en plafonds worden glad gestuct - Klaar
- Nieuwe vloertegels in het hele huis - Klaar
- Nieuwe ramen - Klaar
- Nieuwe kitchenette
- Nieuwe badkamer
- Airconditioning in de woonkamer - Klaar
- Nieuwe downlights in het plafond - Klaar
- Buiten:
- Nieuw pad
- Buitenschilderwerk
- De werkzaamheden worden in november afgerond.