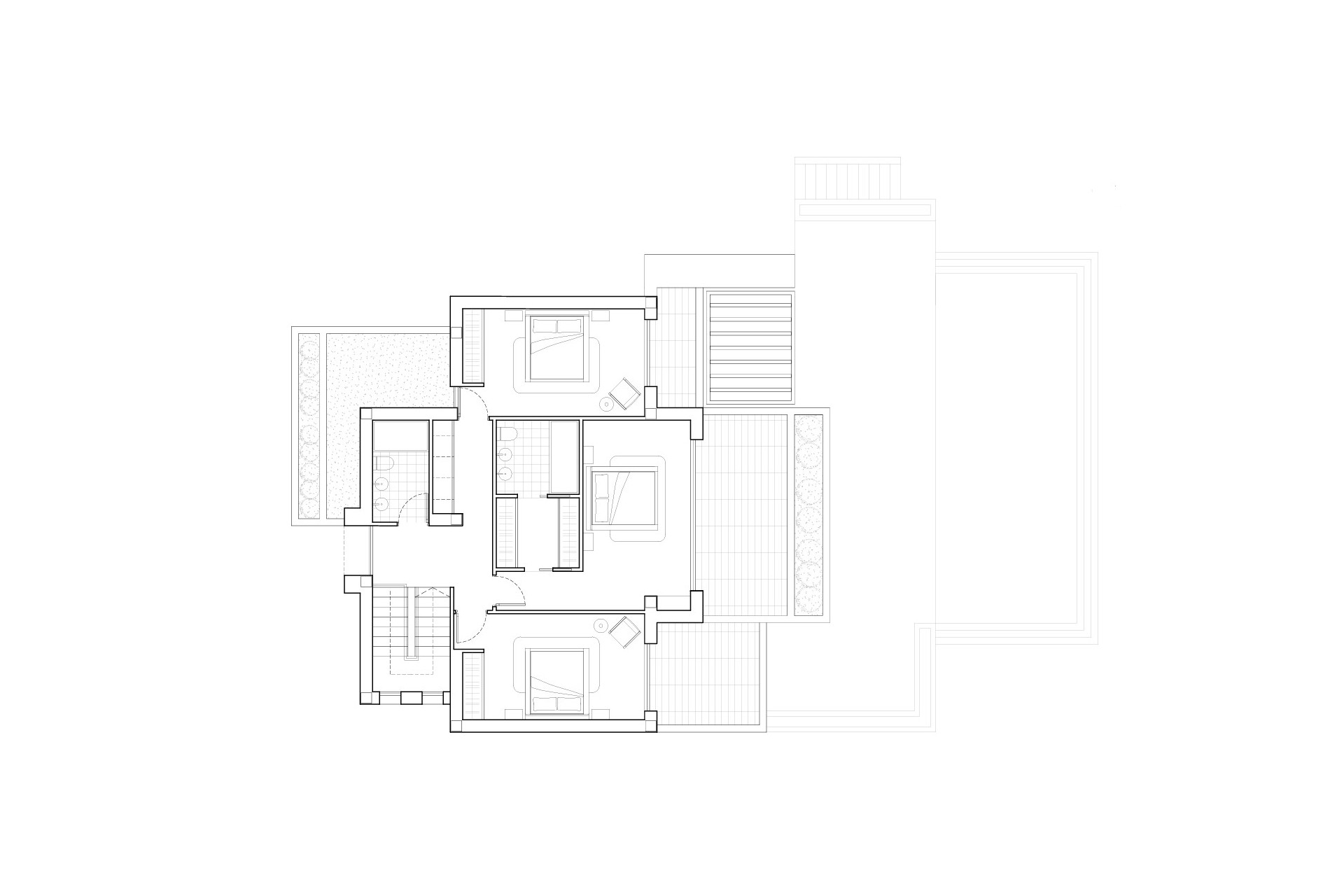
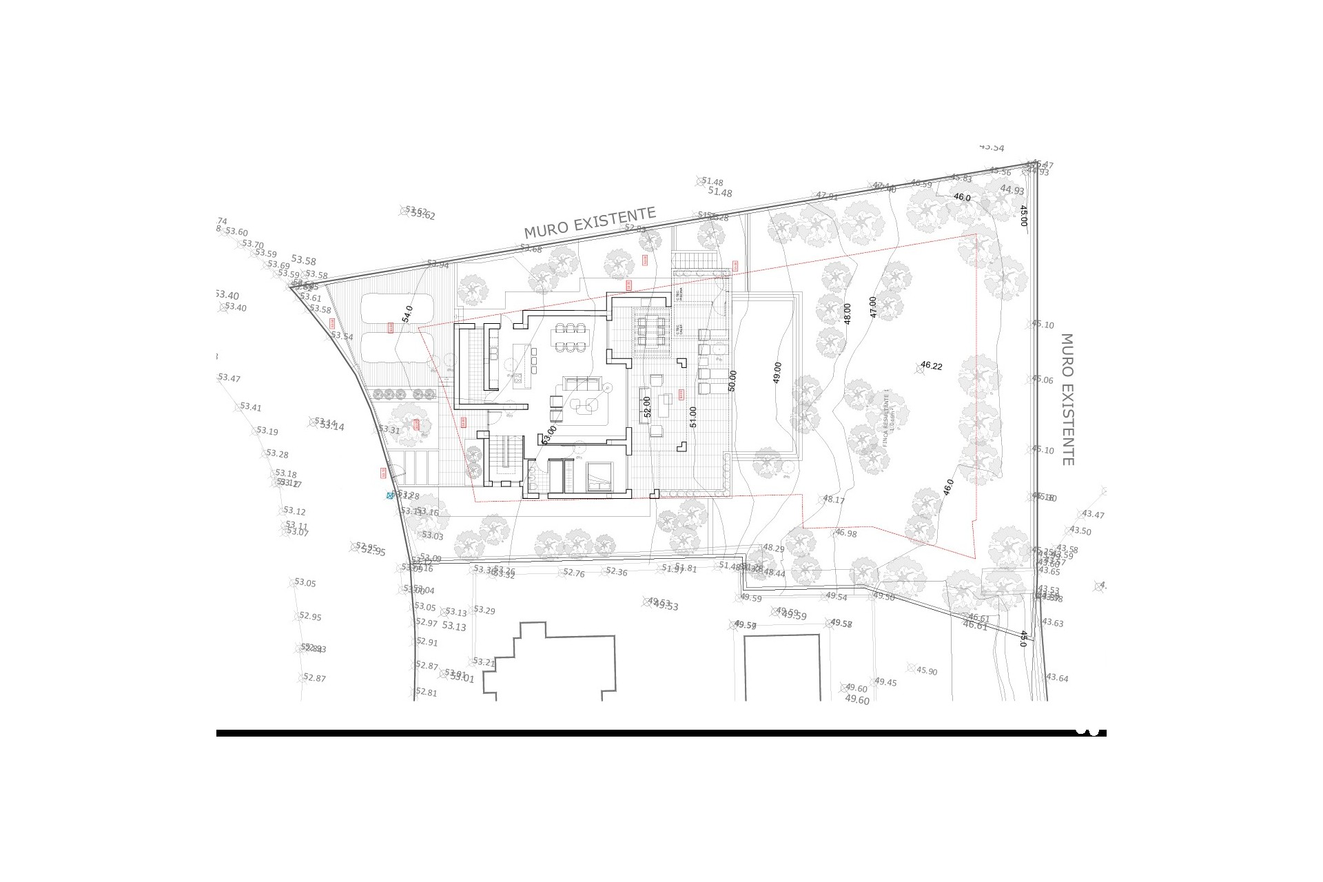
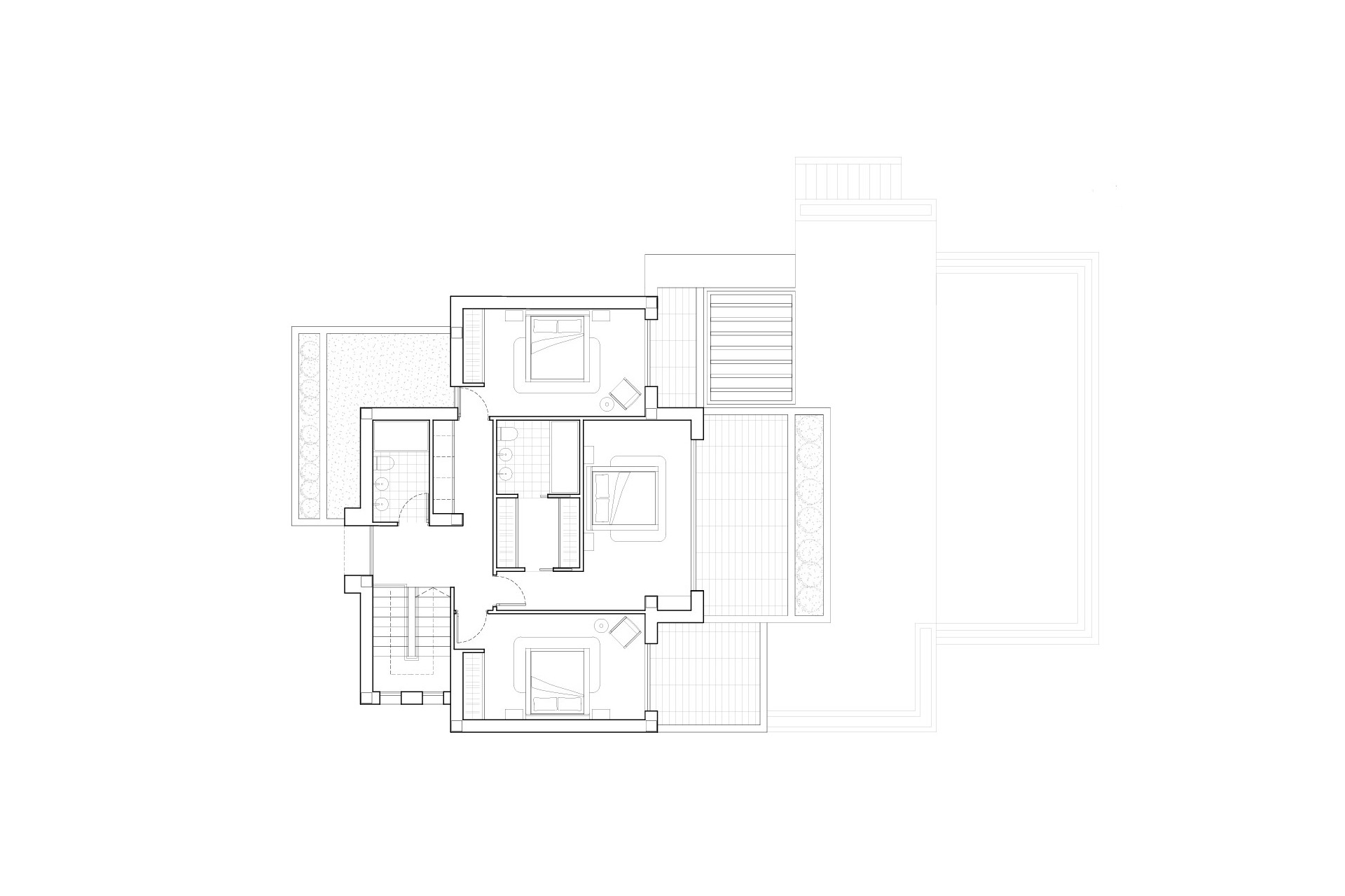
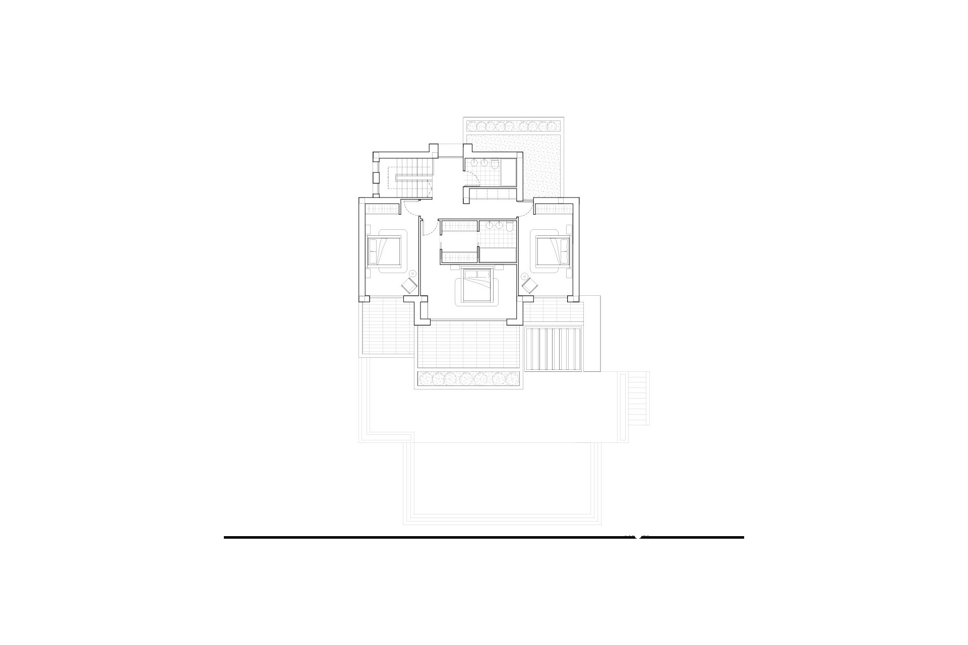
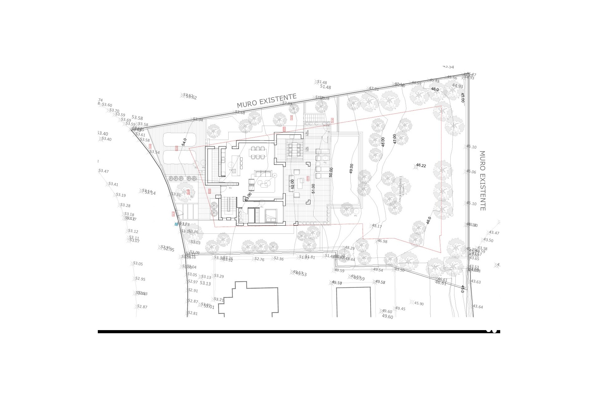
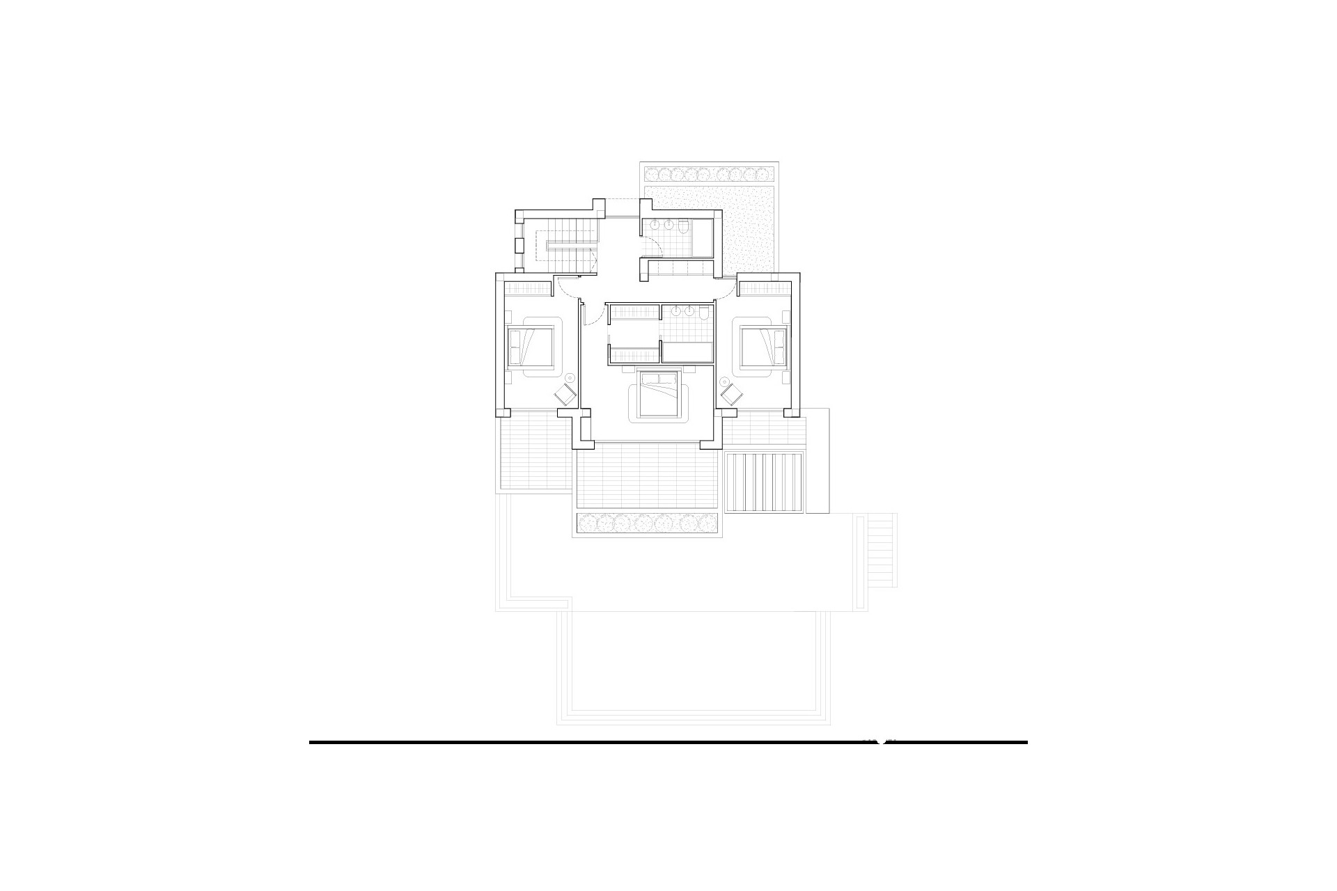
Villa met zeezicht en Ibiziaanse charme in La Fustera,Deze prachtige nieuw gebouwde villa combineert de elegantie van hedendaagse architectuur met de warmte en het karakter van Ibizaans design. De villa is gelegen in de gewilde wijk La Fustera (Benissa Costa), heeft panoramisch uitzicht op zee en ligt op slechts enkele minuten van het strand, supermarkten, restaurants en andere essentiële voorzieningen. De woning ligt op een perceel van meer dan 1.000 m2, is verdeeld over twee verdiepingen en biedt in totaal 4 ruime slaapkamers en 3 badkamers. De begane grond heeft een open indeling met een grote woonkamer, eethoek en volledig uitgeruste keuken met kookeiland en ontbijtbar. Schuifdeuren van vloer tot plafond verbinden het interieur met een royaal terras op het zuiden, waardoor een perfecte binnen-buitenflow ontstaat. Buiten beschikt de villa over verschillende ontspannings- en eethoeken, een pergola overdekte BBQ-ruimte en een uitnodigend zwembad omringd door weelderig groen en ligstoelen. Op de bovenverdieping zijn er drie extra slaapkamers (waaronder de master suite met en-suite badkamer en privéterras), evenals een tweede terras met prachtig uitzicht. Het huis is volledig uitgerust voor comfort het hele jaar door en beschikt over vloerverwarming, gekanaliseerde airconditioning en hoogwaardige afwerking. Extra functies zijn onder andere een technische ruimte voor het verwarmingssysteem en een aparte ruimte voor zwembadapparatuur, beide ondergronds gelegen om ruimte en functionaliteit te maximaliseren.Bebouwde oppervlakken- Begane grond: 122,38 m2- Bovenverdieping: 101,50 m2- Veranda's: 33,09 m2- Pergola BBQ: 11,30 m2- Terrassen: 93,15 m2 (56,65 m2 + 36,50 m2)- Zwembad: 39,60 m2- Buitenbestrating en trottoirs: 115,31 m2- Technische ruimtes (ondergronds): 17,45 m2Een perfecte mix van design, locatie en comfort - deze villa is ideaal voor wie wil genieten van het mediterrane leven met een spectaculair uitzicht op zee.