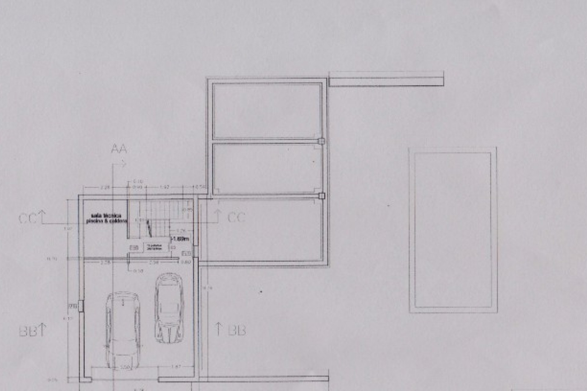
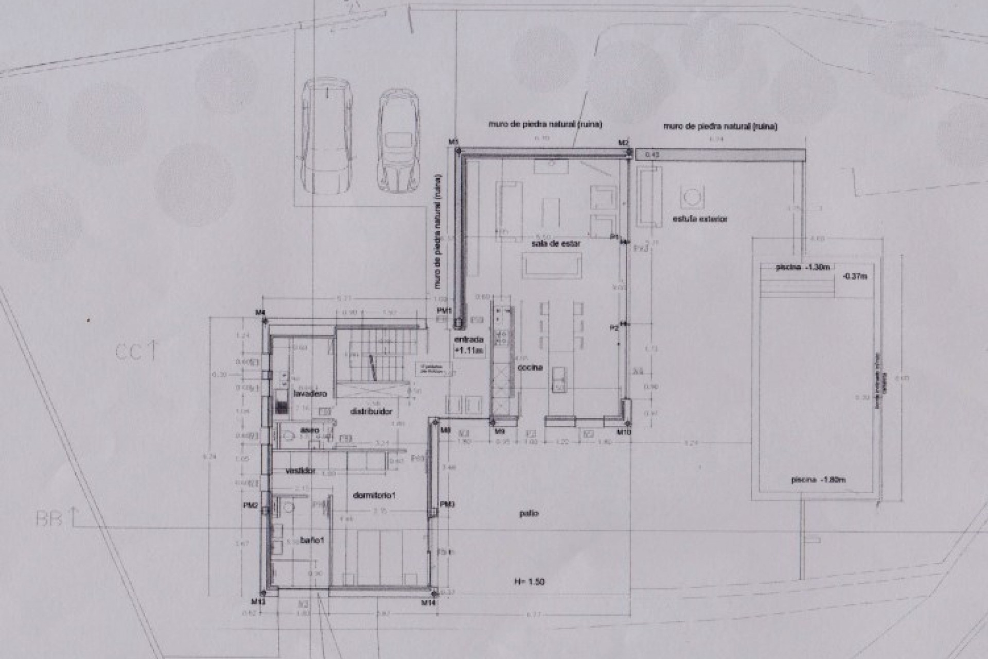
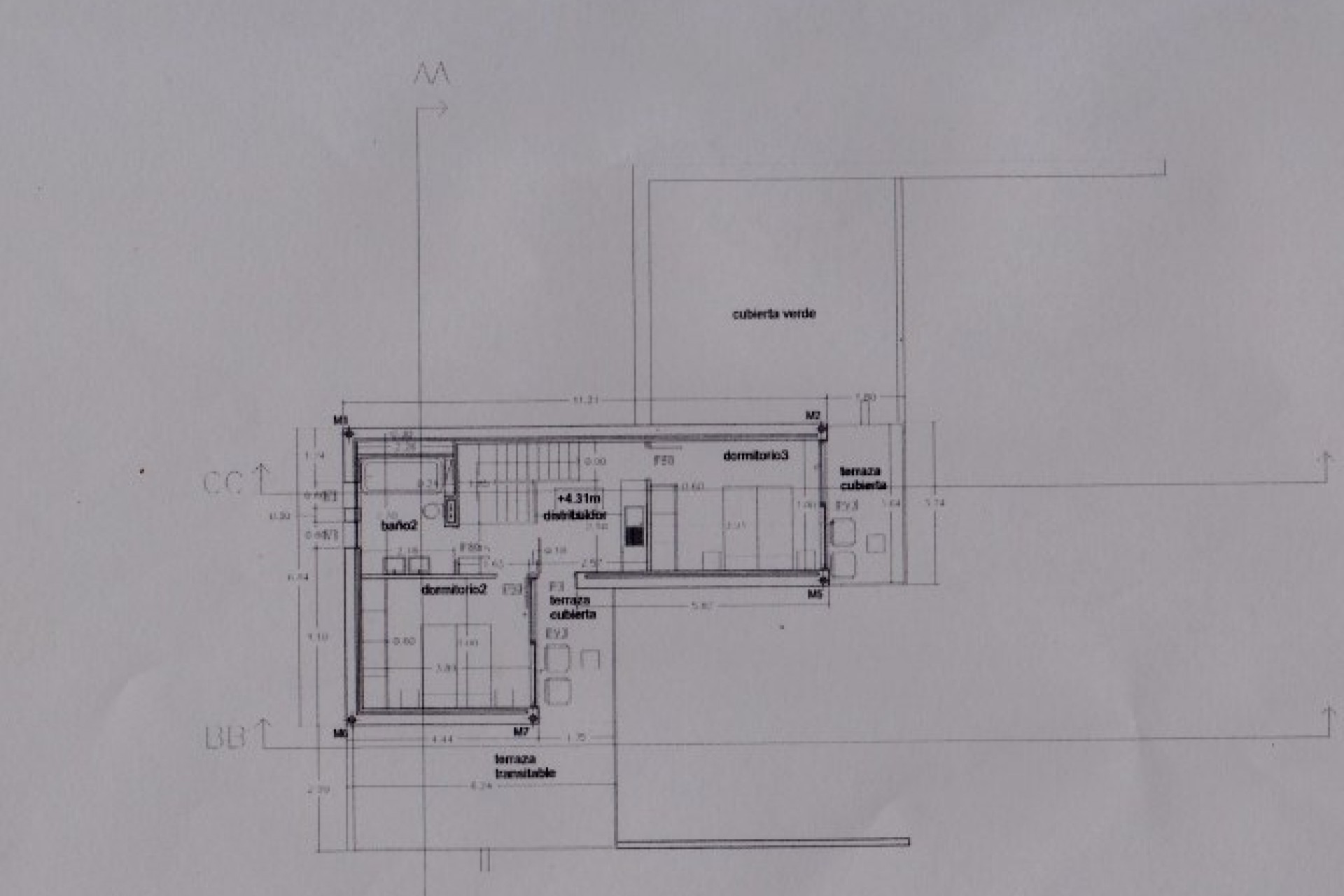
1145m2 grondstuk met uitzicht op zee gelegen in de zone Girasoles van Cumbre del Sol. Water en elektriciteit op het grondstuk en een voetpad rondom het grondstuk. De eigenaar biedt een project aan met dit perceel voor een villa met twee verdiepingen en een garage in de kelder. De villa bestaat uit een open woonkamer op de begane grond met toegang tot het terras bij het zwembad, plus een slaapkamer met tweepersoonsbed en een badkamer. Op de eerste verdieping zijn er twee slaapkamers, beide met een eigen badkamer en een eigen terras met uitzicht op zee. Aarzel niet om contact met ons op te nemen voor meer informatie.
Cumbre del Sol biedt enkele van de meest spectaculaire uitzichten op zee aan de Costa Blanca. Er is een winkelcentrum in de urbanisatie met supermarkt, apotheek, café en restaurant met een zwembad. Er is ook een prachtig lokaal strand, Cala Moraig, met seizoensgebonden strandcafés, een manege en een enorme groene zone, ideaal om te wandelen of fietsen. De dichtstbijzijnde stad is Benitachell op ongeveer vijf minuten rijden, het is tien minuten rijden naar de stad en de stranden van Moraira en ongeveer een kwartier rijden naar de stad en de stranden van Javea. De golfbaan van Javea is ook vlakbij. Cumbre del Sol heeft ook een zeer grote internationale school.
- Dit is slechts een van de vele Spaanse huizen die we te bieden hebben aan de Costa Blanca in de provincie Alicante. Als u op zoek bent naar een appartement, herenhuis, villa, nieuwbouw villa, landhuis of een perceel om uw eigen woning te bouwen, we hebben ze allemaal, en we bieden ook een zoekfunctie voor onroerend goed om u te helpen het pand te vinden dat perfect is voor u. Als u niet kunt vinden wat u zoekt op onze website, neem dan contact met ons op met uw criteria en uw budget en wij zullen ons uiterste best doen om u te helpen