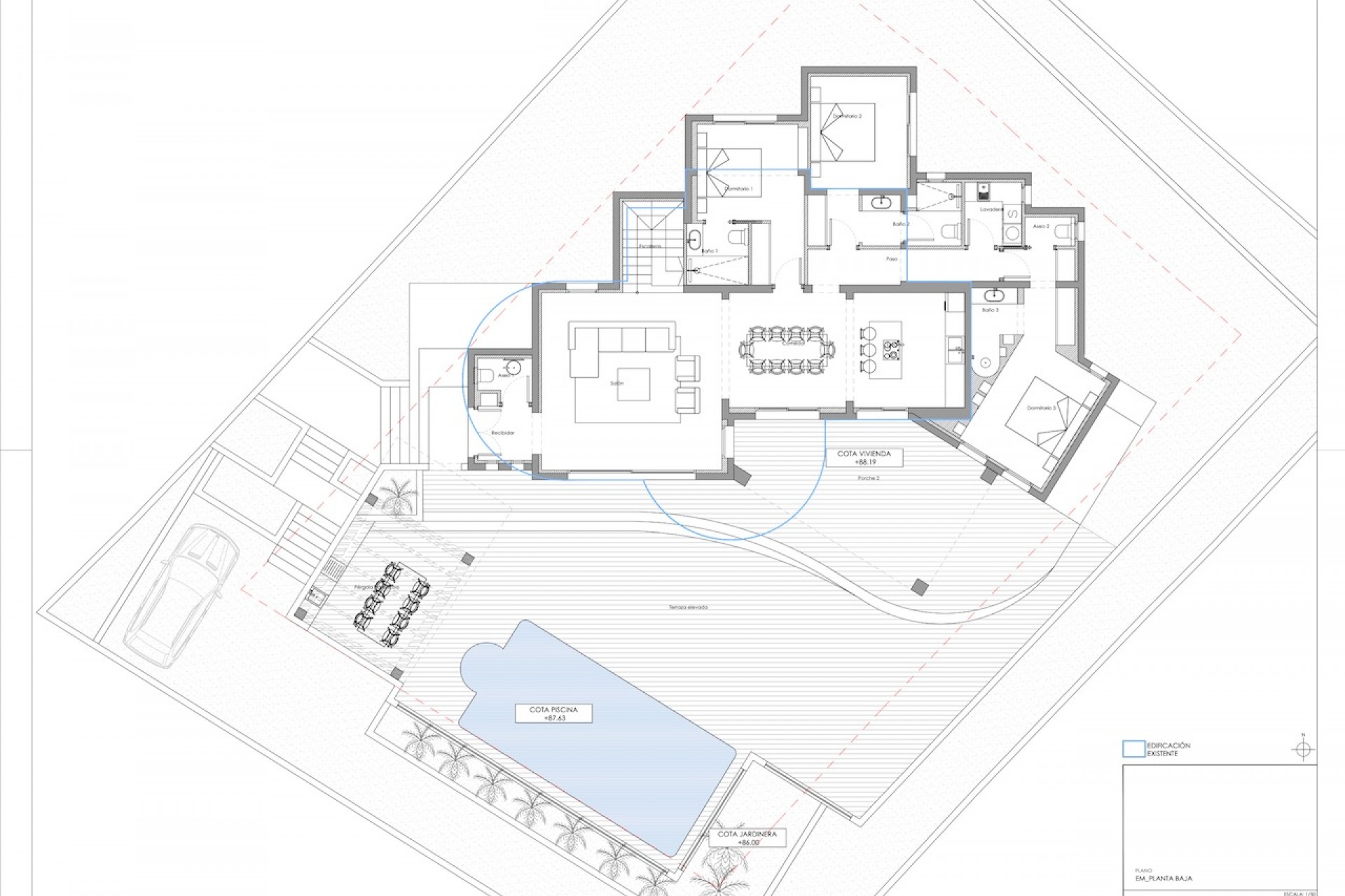
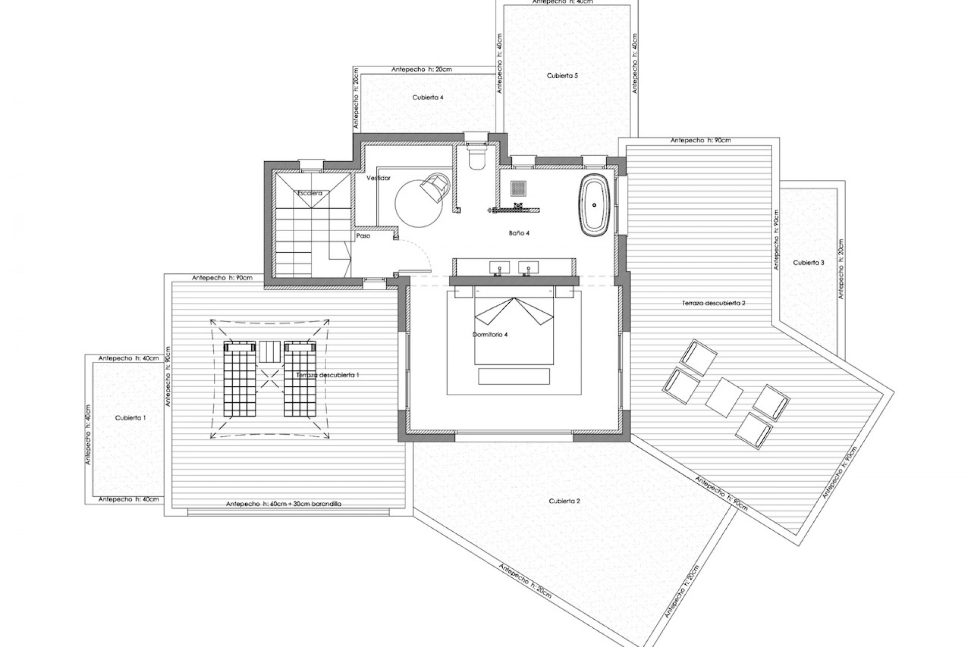
Bouwvergunning is verleend. Ontdek dit prachtige project met Ibiza-geïnspireerde architectuur, gelegen in de geliefde wijk San Jaime in Benissa, op slechts 650 m van de populaire Ifach Golf Club. Deze villa biedt een perfecte combinatie van mediterrane charme, eigentijds design en hoogwaardige bouwkwaliteit, in een rustige en groene omgeving, maar toch dicht bij de meest geliefde voorzieningen van de regio. Deze stijlvolle villa combineert een modern ontwerp met natuurlijke materialen en zachte, neutrale tinten, wat zorgt voor een warme en uitnodigende sfeer. Grote raampartijen laten veel natuurlijk licht binnen en openen naar het ruime terras, waar een privézwembad, zonnige loungeplekken en een goed uitgeruste zomerkeuken zorgen voor het ultieme buitenleven. Binnen is er een open indeling met een lichte woonkamer en een moderne keuken voorzien van hoogwaardige apparatuur - ideaal voor dagelijks gebruik en ontspannen momenten. De woning beschikt over vier royale slaapkamers, elk met een eigen en-suite badkamer, wat zorgt voor comfort en privacy voor familie en gasten. De villa is ontworpen met oog voor zowel stijl als praktisch comfort en is uitgerust met vloerverwarming via een energiezuinige warmtepomp en een geruisloos, geïntegreerd airconditioningsysteem. Er is tevens de mogelijkheid om een apart gastenverblijf toe te voegen. De bouwvergunning is reeds verleend, waardoor de bouw direct kan starten en kopers de vrijheid hebben om afwerkingen en materialen naar eigen smaak te kiezen. Gelegen in een rustige woonwijk, op loopafstand van de Ifach Golf Club en op korte rijafstand van de stranden, baaien en sfeervolle dorpen Benissa en Moraira, is dit een prachtige kans om te genieten van modern mediterraan wonen aan de Costa Blanca. Belangrijkste kenmerken: 4 ruime slaapkamers, elk met en-suite badkamerBouwvergunning verleend - direct starten mogelijkVrije keuze in materialen en afwerkingHoogwaardige bouwkwaliteit met aandacht voor detailOptioneel gastenverblijf mogelijkVloerverwarming via energiezuinige warmtepompGeruisloos, geïntegreerd airconditioningsysteemModerne open keuken met hoogwaardige apparatuurBuitenkeuken en eetgedeelteRuim terras met privézwembad en mediterrane tuinOverdekt terras (naya) en stijlvolle houten pergola’sRustige woonomgeving op loopafstand van Ifach Golf Club Neem vandaag nog contact met ons op voor meer informatie of om uw wensen te bespreken - wij helpen u graag verder.