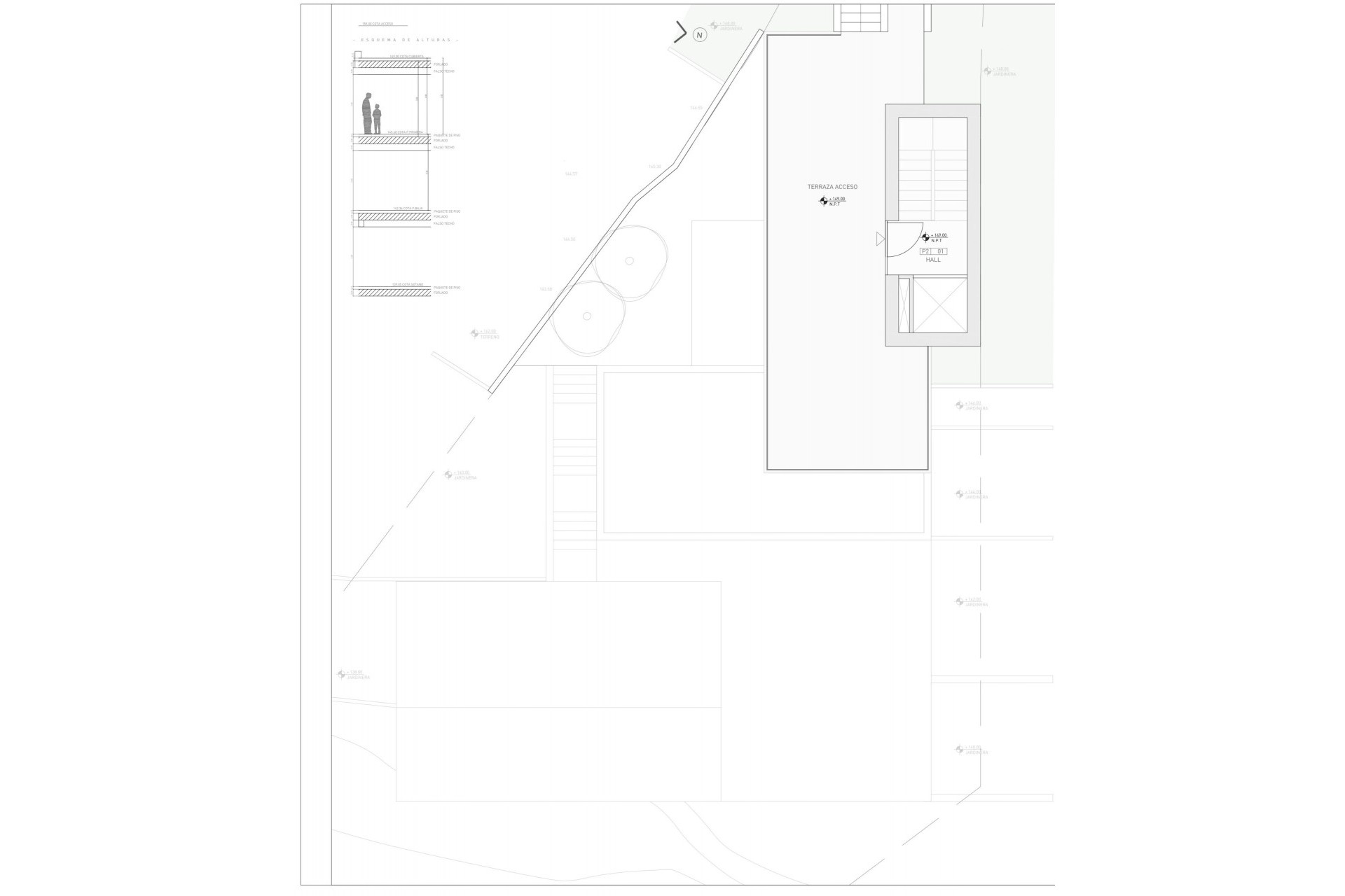
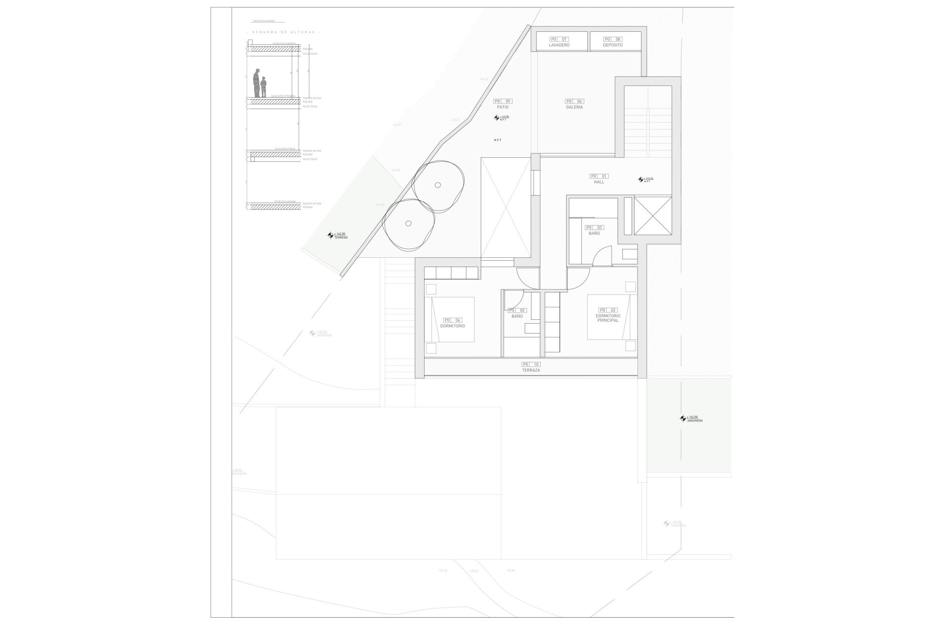
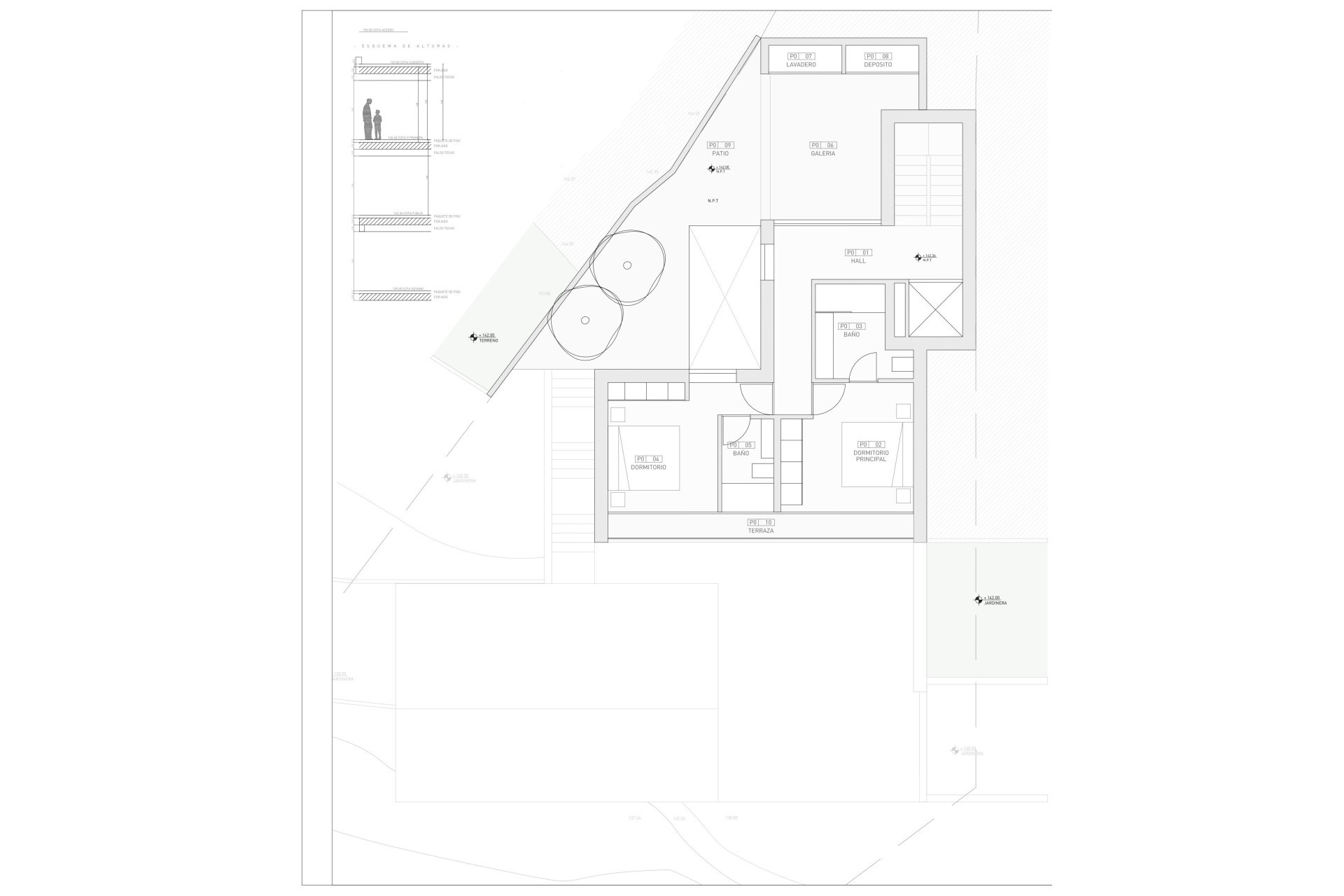
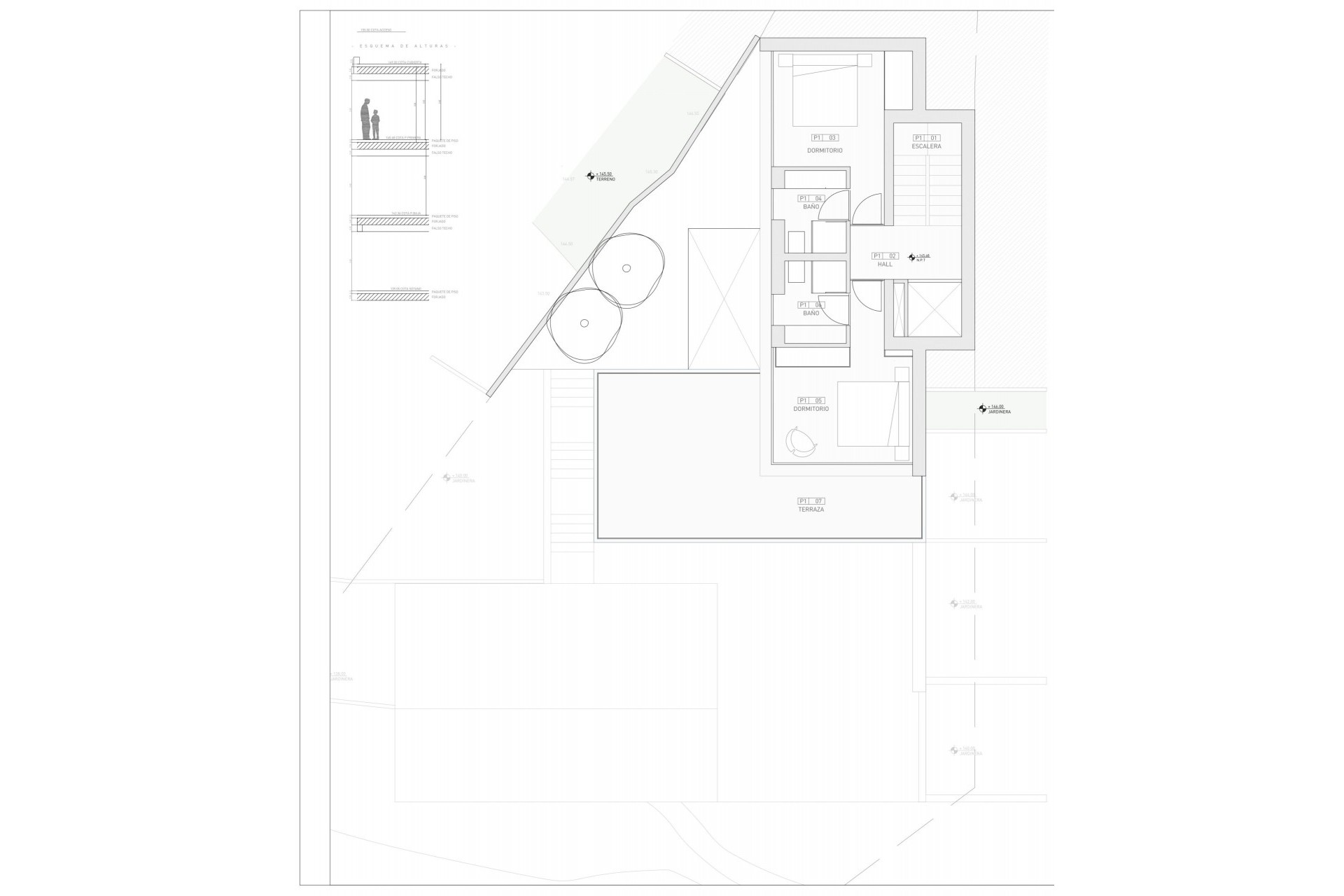
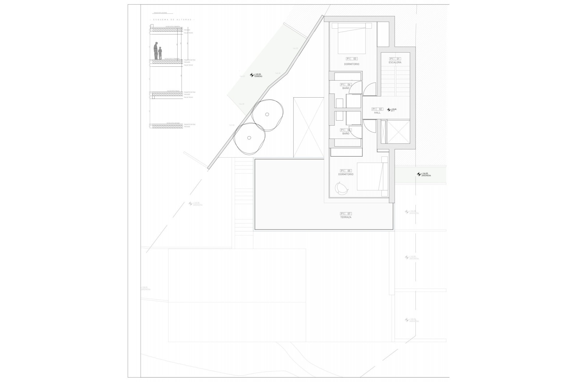
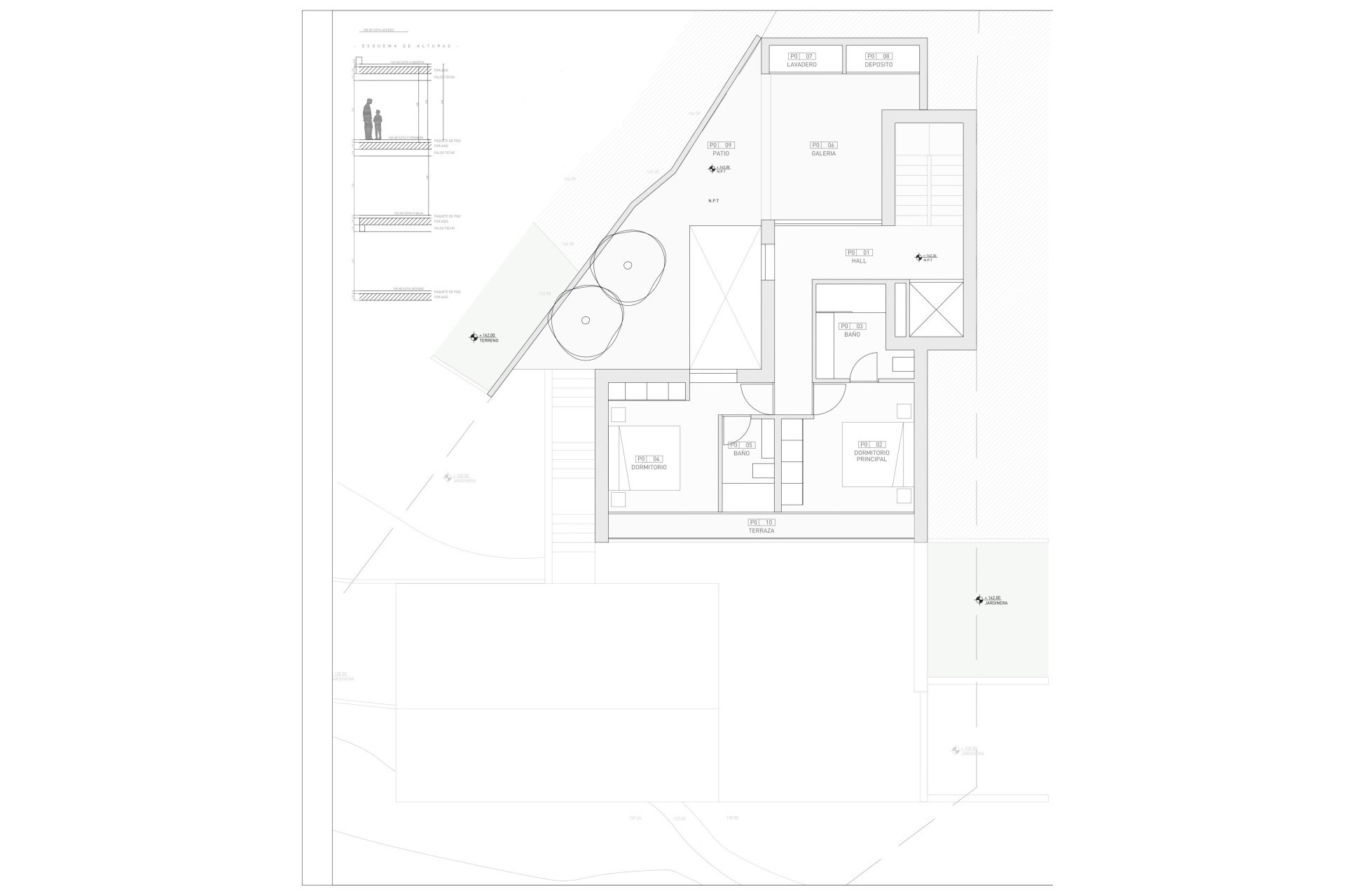
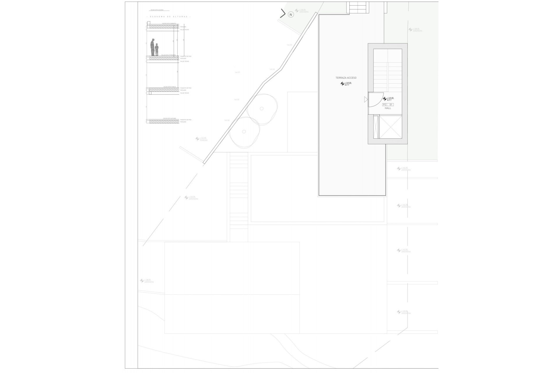
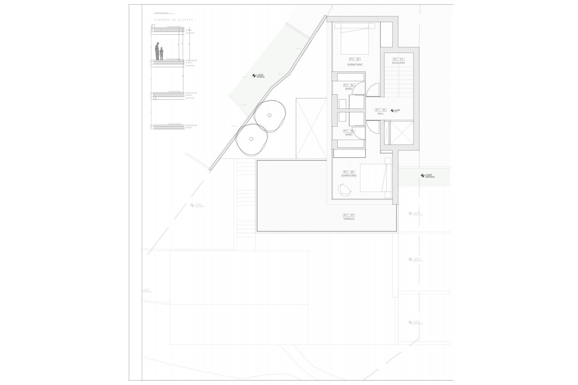
This modern villa is located in Benissa and offers breathtaking views of the coast from the Cap D'or in Moraira to the Peñon de Ifach in Calpe. The villa is spread over four floors connected by an elevator. At street level there is parking space for two cars. Through a staircase you reach the top floor, where there is a hall and the stairs and elevator to the other floors. There is the possibility of also installing an elevator from the parking area to the hall to create maximum comfort. One floor below are two double bedrooms. Each bedroom has an en suite bathroom and one bedroom has a large terrace. Another floor below are another two double bedrooms, both with en suite bathrooms and with access to a shared balcony. On this floor there is also a covered terrace, a small garden, a laundry room and a technical room. The first floor consists of a very spacious living room with an open kitchen with a large island and a guest toilet. Outside there is a 3.5 x 10m swimming pool surrounded by a large terrace with a barbecue. On the west side of the villa there is another patio, therefore on this floor there is not only natural light from the southeast but also from the west. Through the large windows you can also enjoy the beautiful views from all floors. The villa has underfloor heating and air conditioning. The beautiful coast of Benissa is only 2 km away and offers several idyllic beaches perfect for sunbathing, snorkeling, etc. Moreover, the villa is located in a very central location with regard to the surrounding villages and towns. In just 10 minutes you can reach the large sandy beaches of Calpe as well as the historic center of Benissa. And in about 20 minutes you are in the tourist port village of Moraira.