CB Property Sales

#REF: CBD735 · Sale · Villa

Moraira · Benimeit

€375.000

#REF: CBD735 · Sale · Villa

Moraira · Benimeit

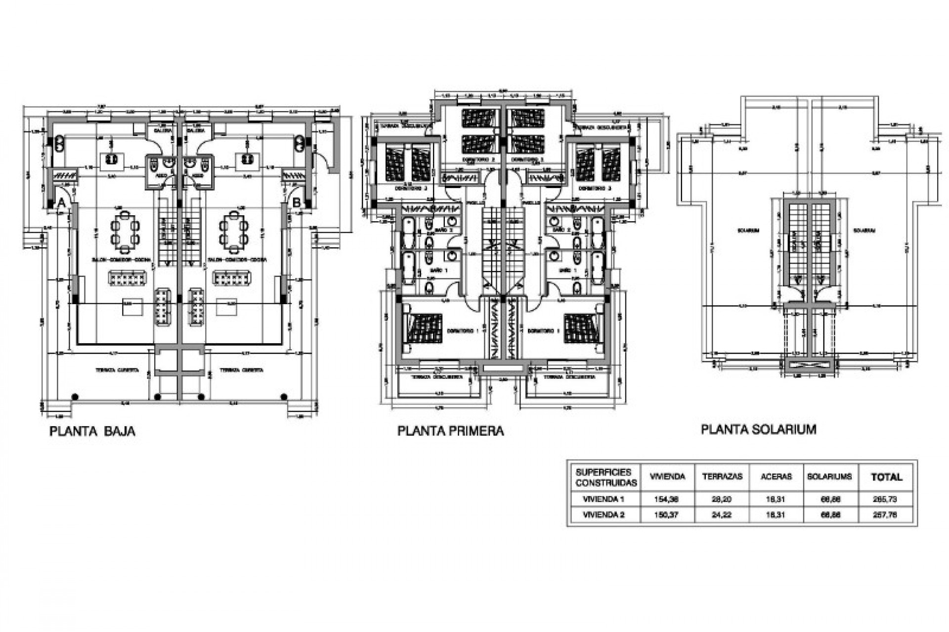
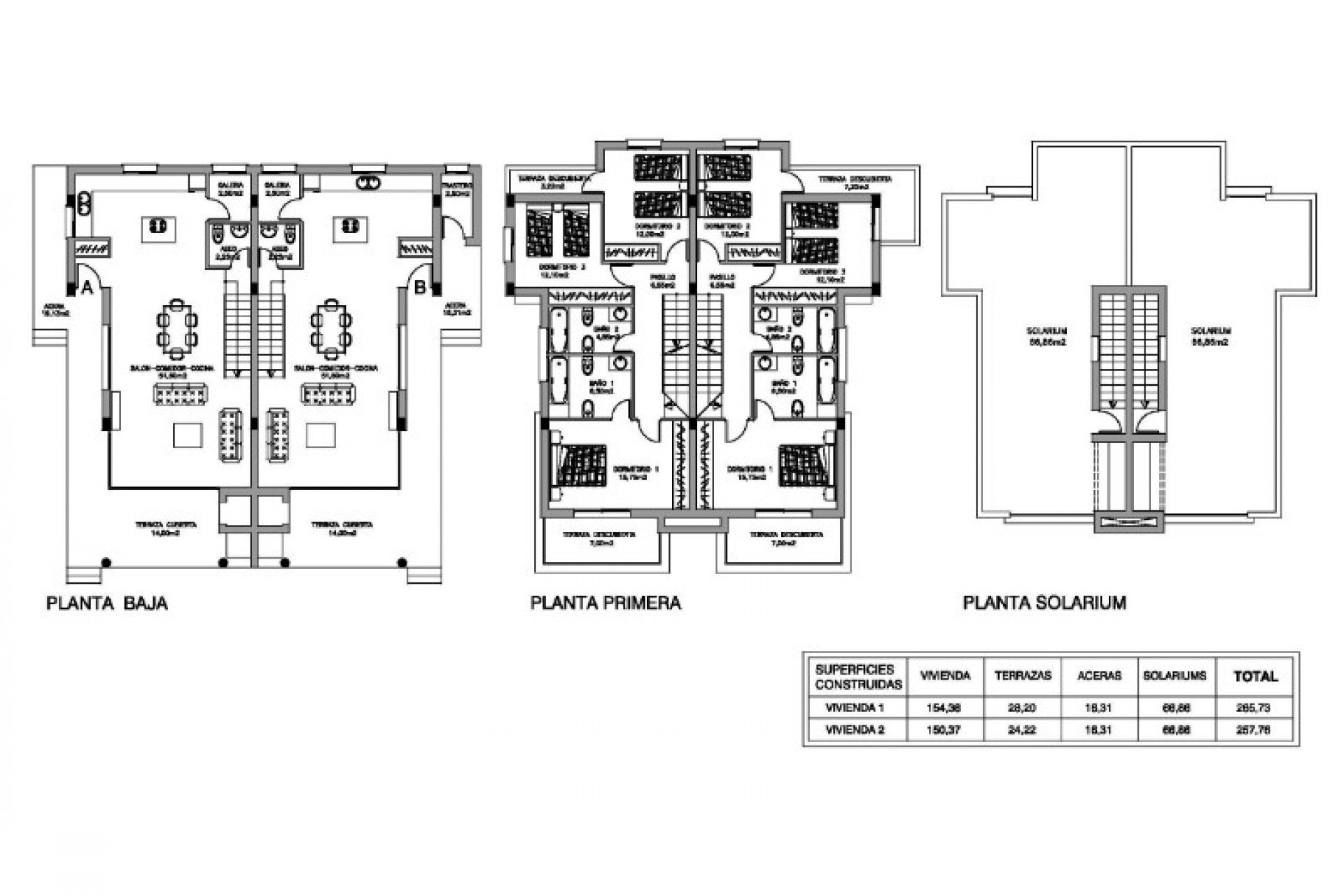
  • Built House icon 154 m2
  • Plot Plot icon 469m2
  • Bedrooms Bed icon 3
  • Bathrooms Bath icon 2

Description

Features

Bedrooms: 3
Bathrooms: 2
Built: 154m2
Plot: 469m2
Pool: Private 8 x 4
View: Mountain and valley views
Energy Rating: D

Make an enquiry

Responsable del tratamiento: CB Property Sales, Finalidad del tratamiento: Gestión y control de los servicios ofrecidos a través de la página Web de Servicios inmobiliarios, Envío de información a traves de newsletter y otros, Legitimación: Por consentimiento, Destinatarios: No se cederan los datos, salvo para elaborar contabilidad, Derechos de las personas interesadas: Acceder, rectificar y suprimir los datos, solicitar la portabilidad de los mismos, oponerse altratamiento y solicitar la limitación de éste, Procedencia de los datos: El Propio interesado, Información Adicional: Puede consultarse la información adicional y detallada sobre protección de datos Aquí.

Can’t find your ideal home?

Let us help you

To find your dream property
WhatsApp