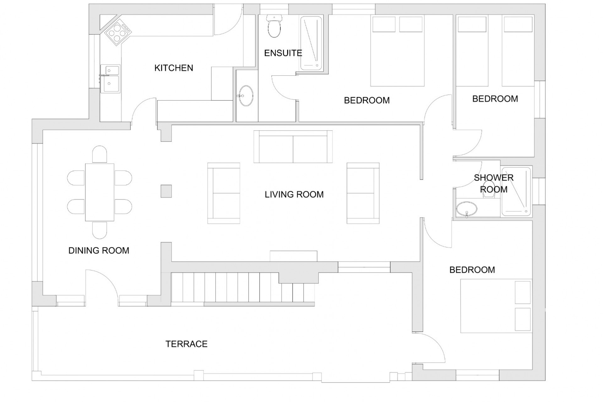
Located in a quiet residential area within easy walking distance of Moraira, this well-maintained villa offers generous accommodation, excellent outdoor space, and great accessibility. Set on a completely flat plot, the property provides easy access and excellent usability, making it ideal for families, retirees, or as a holiday retreat. A gated entrance opens onto a private driveway with ample parking for several vehicles. On this level, there is also a substantial under build currently used for storage, offering excellent potential to be converted into a garage or additional accommodation if desired. A few steps lead up to an inviting terrace overlooking the 9 x 5 kidney shaped pool, surrounded by multiple terraced seating areas—perfect for relaxing, sunbathing, or entertaining guests. The villa is set on a flat plot and enjoys a lovely Mediterranean garden featuring lemon, lime, orange, and nispero trees, adding both charm and practicality. The entrance opens into a bright dining area, elegantly separated from the generous lounge by attractive archways. The large lounge features a centrally positioned gas fireplace, creating a warm and welcoming focal point. From the dining room, there is access to a fully enclosed kitchen, which also provides direct access to the rear of the property. Here you will find a specially designed wheelchair access, ensuring practicality and ease of movement. From the lounge to a hallway which leads to the sleeping accommodation, where a shower room is conveniently positioned between two double bedrooms. At the far end of the hallway, the master bedroom enjoys added privacy and benefits from its own en-suite shower room. Central gas heating and fans. Also a roof terrace from which you can enjoy wide open views and the sea. This property combines comfort, accessibility, and Mediterranean lifestyle in a highly desirable location close to all amenities and beaches. We have included some designs of how the villa could look like if you would like to do a renovation project.