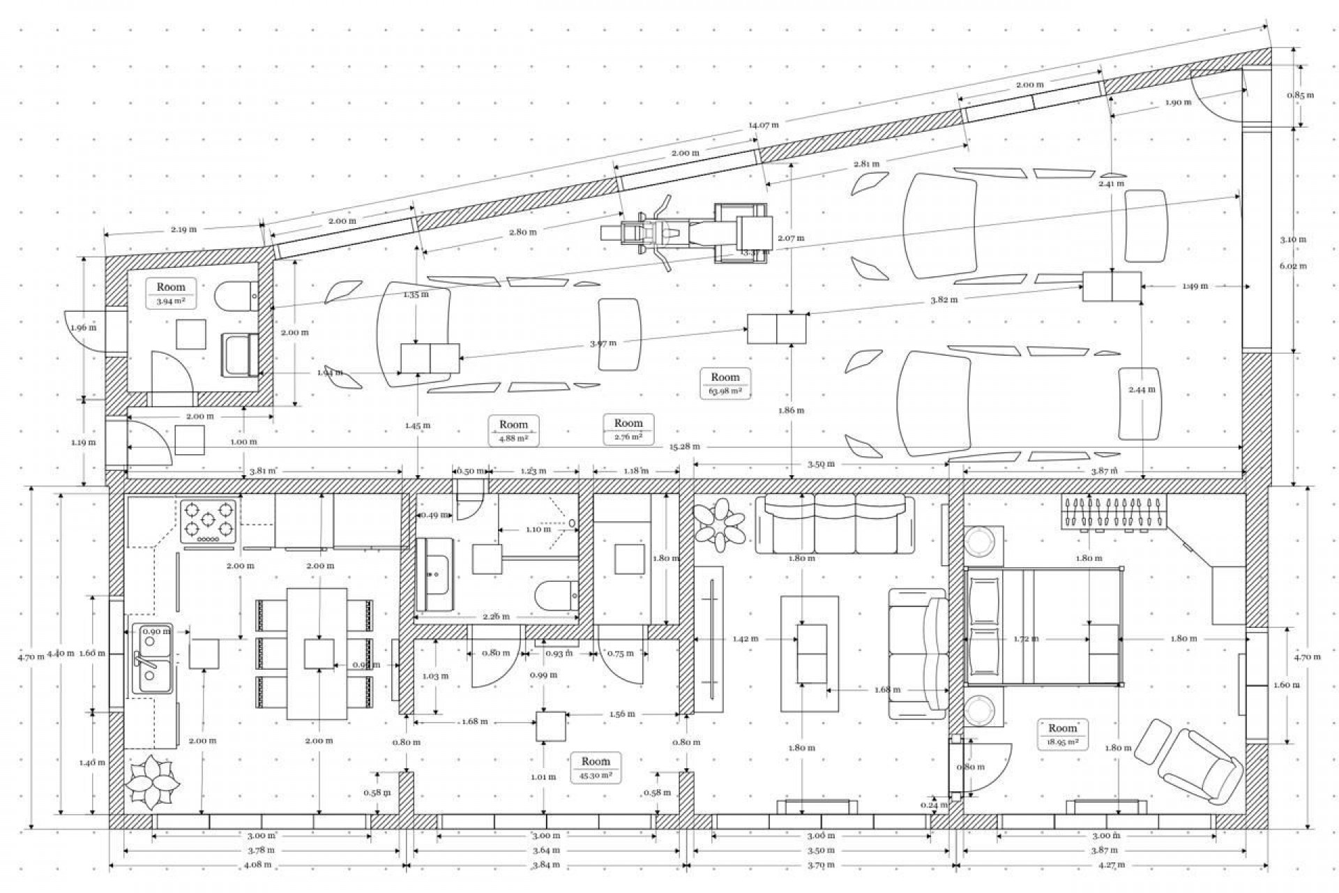
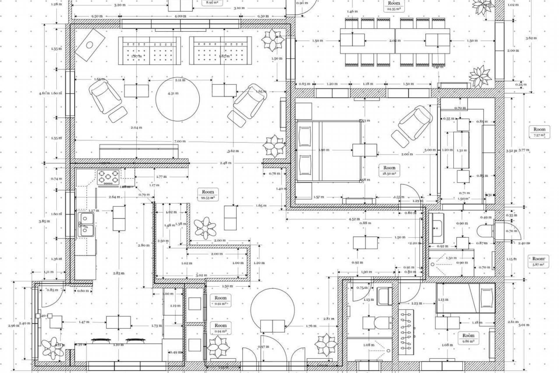
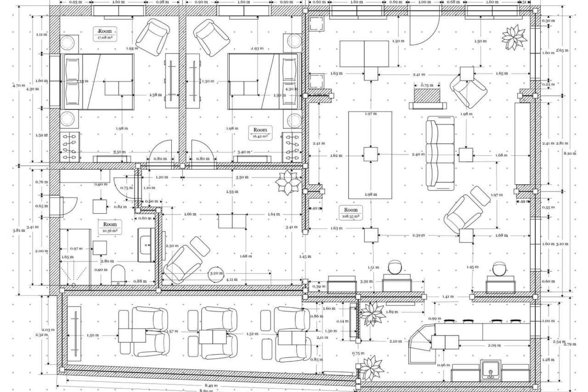
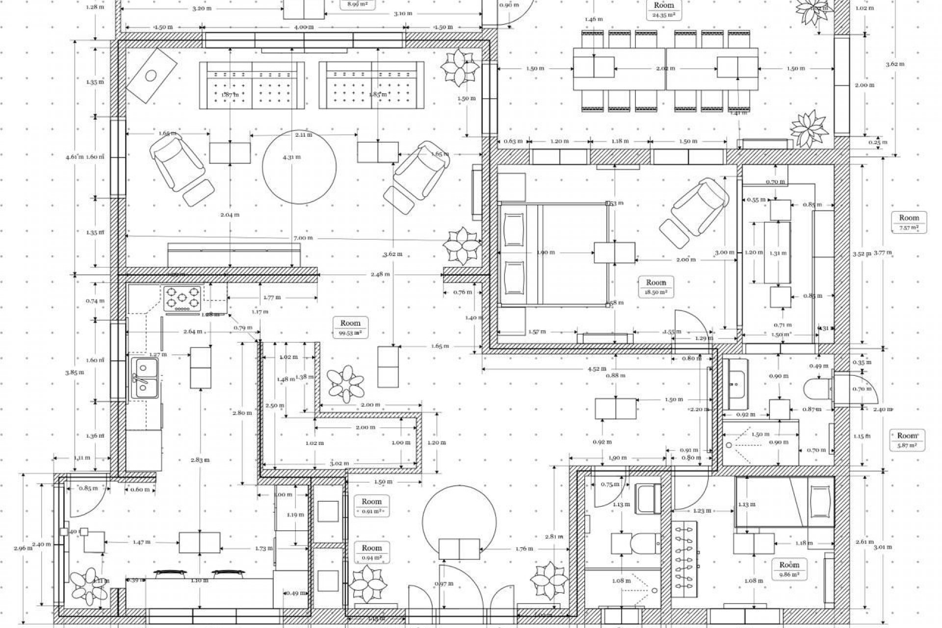
Located in one of the most exclusive areas of El Albir, this newly completed property (spring 2026) sits on a generous plot of 1,200 m², offering a built area of 420 m² designed with a vision of absolute comfort and energy efficiency. The home has been designed with total inclusion in mind, featuring a ramp system that guarantees access for people with reduced mobility throughout the entire perimeter of the site. The main structure is divided into two independent and highly functional levels. On the ground floor, the design prioritizes spaciousness with an integrated livingdining room, kitchen, and two bedrooms, one of which has an ensuite bathroom, as well as a courtesy bathroom. The upper floor replicates this comfort with two more bedrooms and two additional bathrooms, but adds a unique leisure dimension: a dedicated Home Cinema room and an adjoining space ideal for being transformed into a secondary kitchen or bar area, making this level a fully autonomous space. The outdoor experience is enhanced by an independent building next to the 10 x 4.5meter pool. This "guest house" has its own kitchen, dining area, bathroom, and bedroom, providing total privacy. The wellness area is completed with a pool house that includes preinstallation for heating and a private Hammam. The property stands out for its stateoftheart technological features. It is equipped with an integrated Smart Home system and advanced photovoltaic infrastructure, with a storage capacity of 11 kWh and backup power of 10 kW, ensuring minimal and responsible consumption. Thermal comfort is guaranteed through split air conditioning (cooling/heating), PVC windows with Climalit double glazing, and highquality blinds. Additionally, the house is ready for the immediate installation of a fireplace, already having the necessary connection. The attention to detail extends to the exterior, where the garden has been delivered fully completed with an automatic irrigation system, a decorative fountain, and a carefully studied LED lighting design throughout the grounds and stairs. In terms of logistics, the property offers a closed garage for two vehicles with an incorporated bathroom, as well as an exterior carport with space for two more cars. This villa represents a unique opportunity to debut a residence where home automation, solar sustainability, and barrierfree design are just steps away from all the services of El Albir.