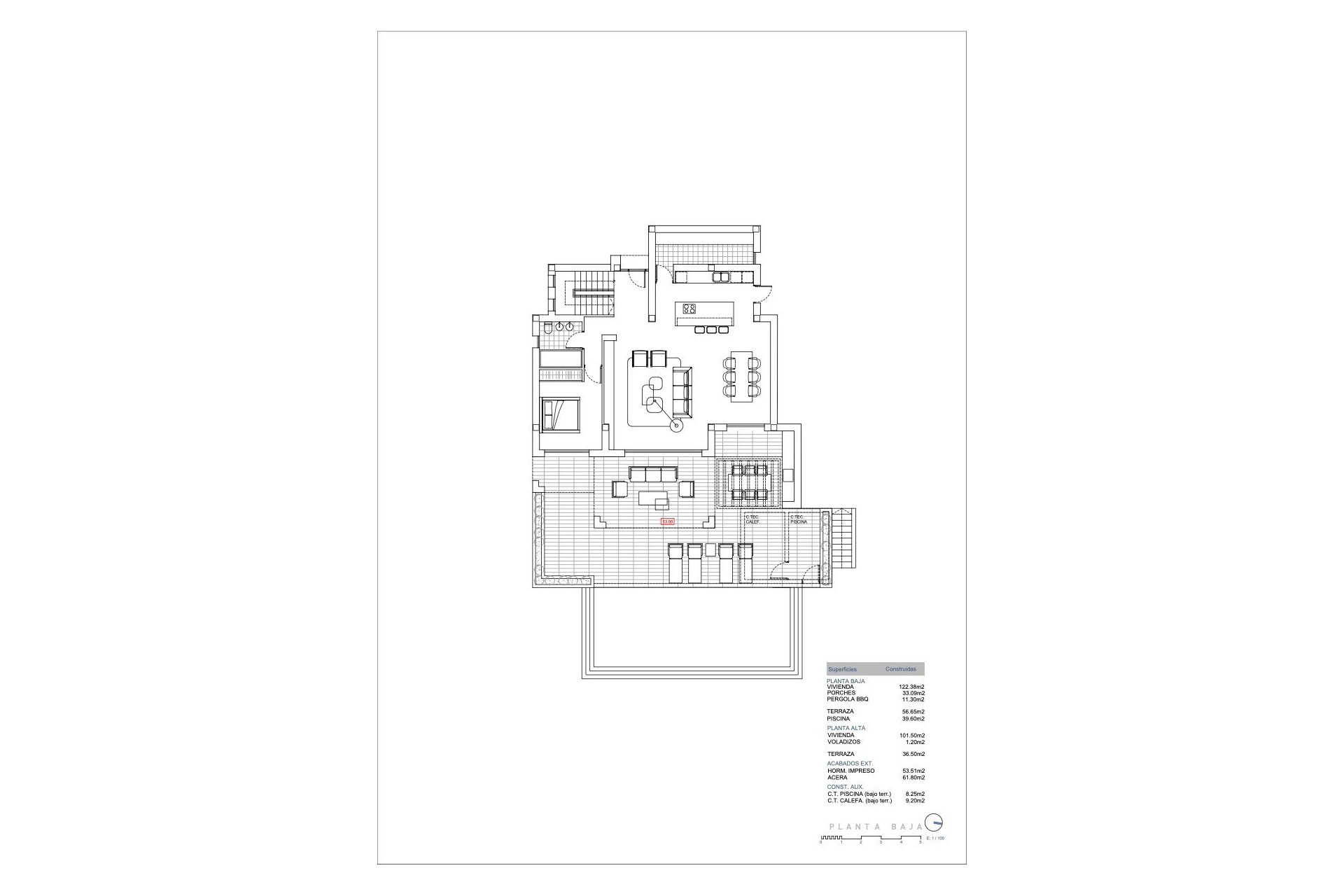
SEA VIEW Villa with Ibizan Charm in La Fustera This beautiful new villa perfectly blends the timeless appeal of Ibizan design with the sophistication of modern architecture. Located in the highly desirable area of La Fustera, Benissa Costa, it enjoys panoramic sea views and an unbeatable location - just 1 km from the beach, restaurants, supermarkets, and other amenities. Set on a flat 1,046 m² plot, the property offers 269 m² of living space distributed over two levels, with 4 spacious bedrooms and 3 stylish bathrooms. The ground floor features a bright open-plan living and dining area with a fully equipped kitchen and central island. Large floor-to-ceiling windows flood the space with natural light and open directly onto the terrace and pool area, creating a seamless indoor-outdoor connection. This level also includes a guest bedroom and bathroom. Upstairs, you’ll find three additional bedrooms, including the master suite with en-suite bathroom and private terrace, as well as a second terrace offering breathtaking sea views. Outside, the villa offers multiple spaces for relaxing and entertaining - a covered terrace for dining, sunny lounging areas, a wooden pergola barbecue area, and a 4×10 m swimming pool surrounded by easy-maintenance Mediterranean gardens. Equipped with underfloor heating via a heat pump, ducted air conditioning, electric shutters, double glazing, and a mechanical ventilation system, the villa ensures maximum comfort and energy efficiency throughout the year. The driveway with a wooden pergola provides parking for two cars, while the layout of the terraces allows for both sun and shade all day long. A perfect combination of design, location, and comfort - ideal for those who dream of Mediterranean living with panoramic sea views in a peaceful yet convenient setting. Key Features:• Modern villa with Ibizan charm• Panoramic sea views• Plot 1,046 m², built area 269 m², terrace 150 m²• 4 bedrooms and 3 bathrooms• Open-plan living and dining area with fully equipped kitchen• 2 levels, south orientation• Underfloor heating (heat pump) and ducted air conditioning• Electric shutters and double glazing• 4×10 m swimming pool and easy-maintenance garden• BBQ area with wooden pergola• Driveway for 2 cars• Close to the beach and amenities (1 km) A truly special home that combines natural beauty, comfort, and elegance. Contact us today for more information or to arrange