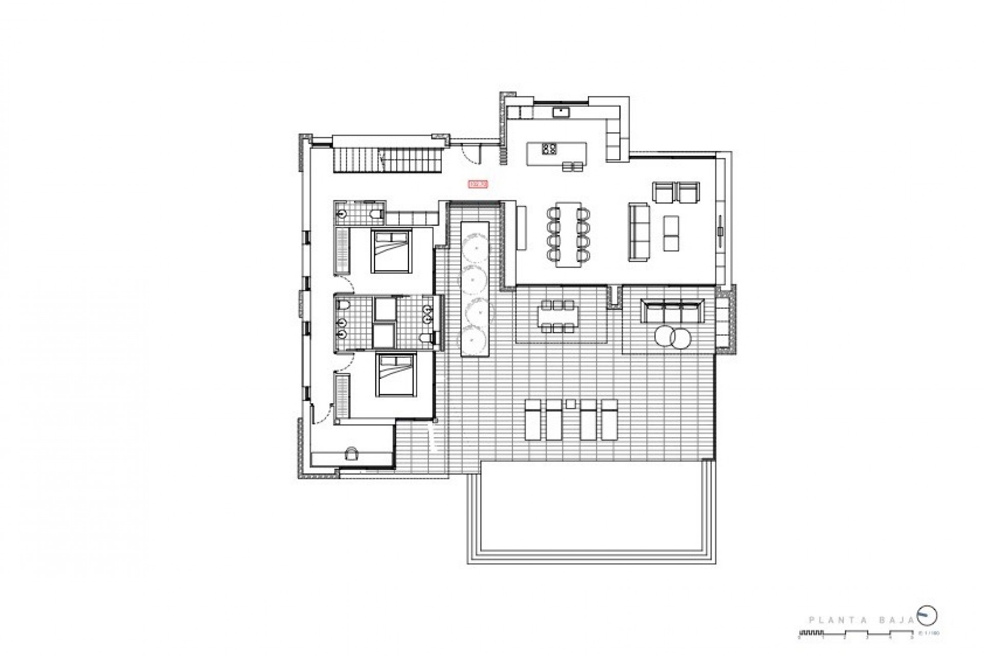
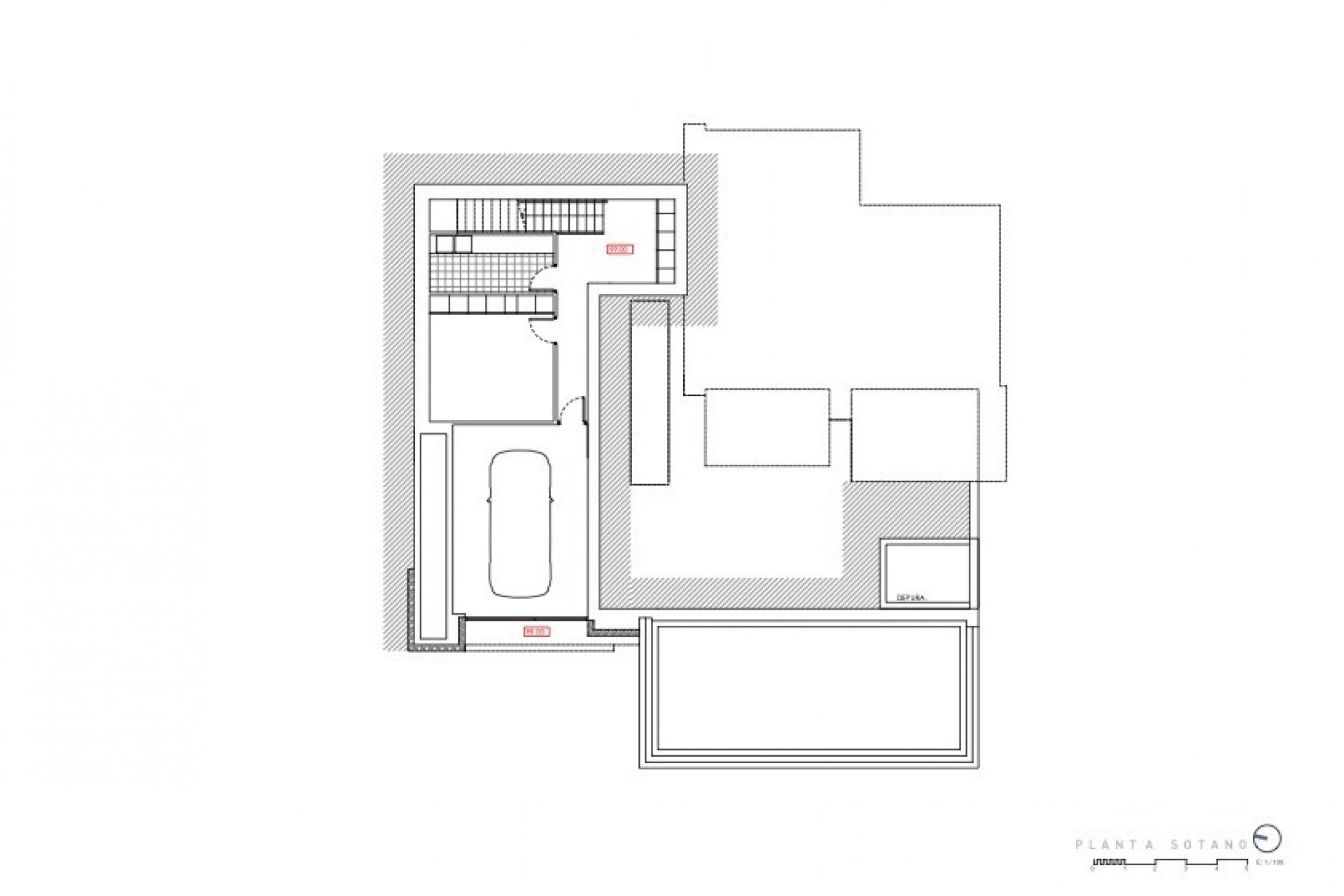
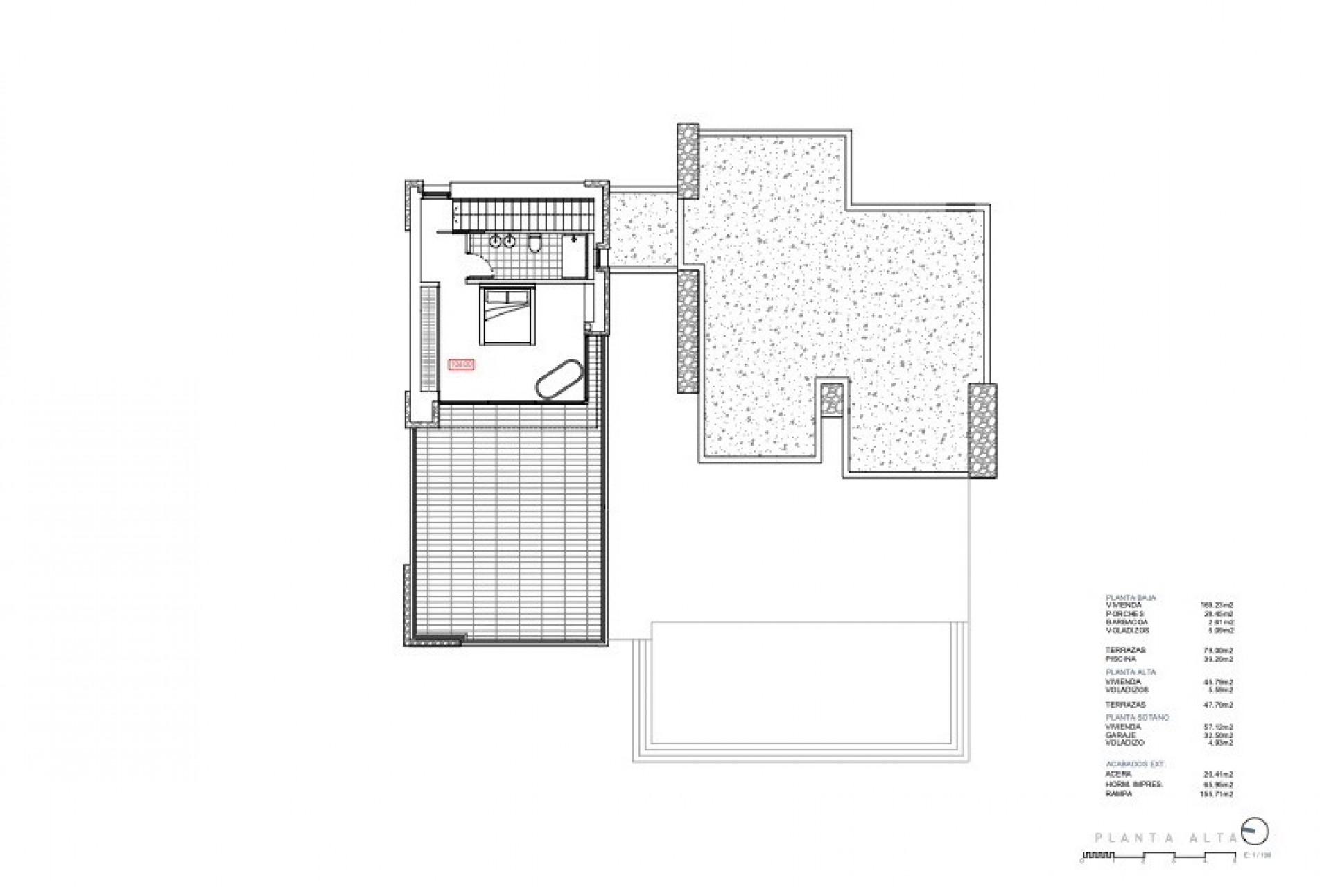
Exquise 3-Slaapkamer Villa met Zeezicht in San Jaime, Moraira Gelegen in de rustige omgeving van San Jaime, combineert deze prachtige woning moderne elegantie, comfort en adembenemend uitzicht op zee. De woning ligt aan een rustig doodlopend straatje en biedt uitzonderlijke privacy, terwijl alle voorzieningen dichtbij zijn. De San Jaime Golfbaan en de bekende supermarkt Pepe La Sal zijn slechts enkele minuten verwijderd, waardoor zowel ontspanning als gemak binnen handbereik is. De villa is verdeeld over drie niveaus en combineert functionaliteit met architectonische verfijning. Op de begane grond vindt u de garage, wasruimte en technische ruimte, ontworpen voor praktisch gebruik zonder concessies te doen aan stijl. De hoofdverdieping biedt een open woon-, eet- en keukenruimte met veel natuurlijk licht, ideaal voor familie en gasten. Twee ruime slaapkamers en-suite bevinden zich ook op deze verdieping en bieden comfort en privacy. De buitenruimte is ontworpen om het buitenleven te maximaliseren, met een terras en een privézwembad dat uitnodigt tot ontspanning, dineren of gewoon genieten van het mediterrane klimaat. De bovenverdieping is gereserveerd voor de luxe master suite, met eigen badkamer en toegang tot een groot privéterras, waar u spectaculaire zonsopgangen en zonsondergangen kunt bekijken. Momenteel in aanbouw – structuur voltooid, zeer binnenkort instapklaar, weerspiegelt deze villa een toewijding aan kwaliteit en verfijning en biedt de perfecte balans tussen modern wonen en de tijdloze charme van de locatie. Belangrijkste kenmerken: Toplocatie in San Jaime, MorairaPerceel: 1.021 m²Bebouwde oppervlakte: 351 m² plus 408 m² auxiliair3 slaapkamers en 4 badkamersUitzicht op zeeVerdeeld over drie niveausOpen woon-, eet- en keukenruimtePrivézwembad en ruime terrassenGarage, wasruimte en technische ruimteIn aanbouw – structuur voltooid, zeer binnenkort instapklaar Neem vandaag nog contact met ons op om een bezichtiging te regelen en deze uitzonderlijke villa te ontdekken.