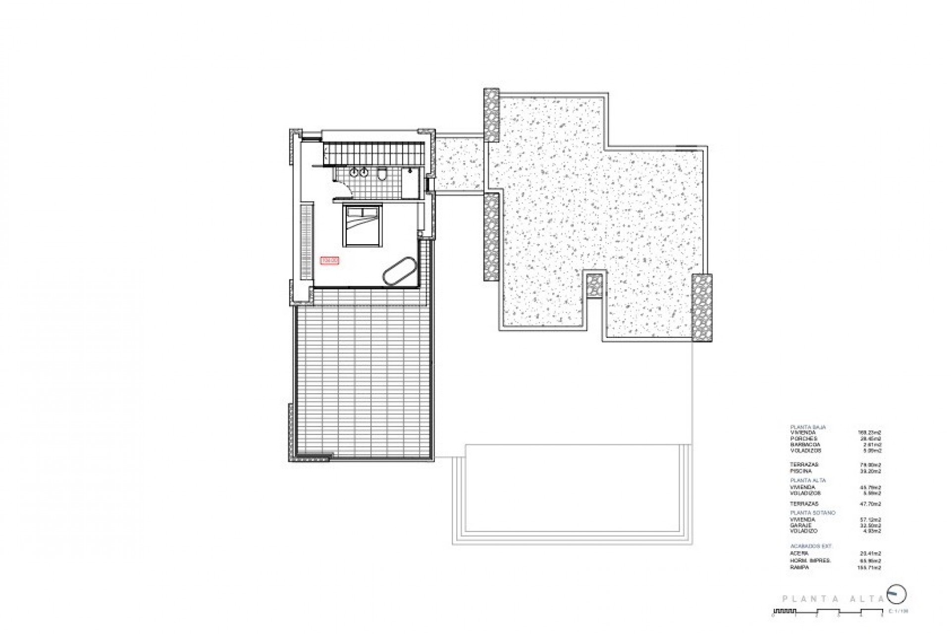
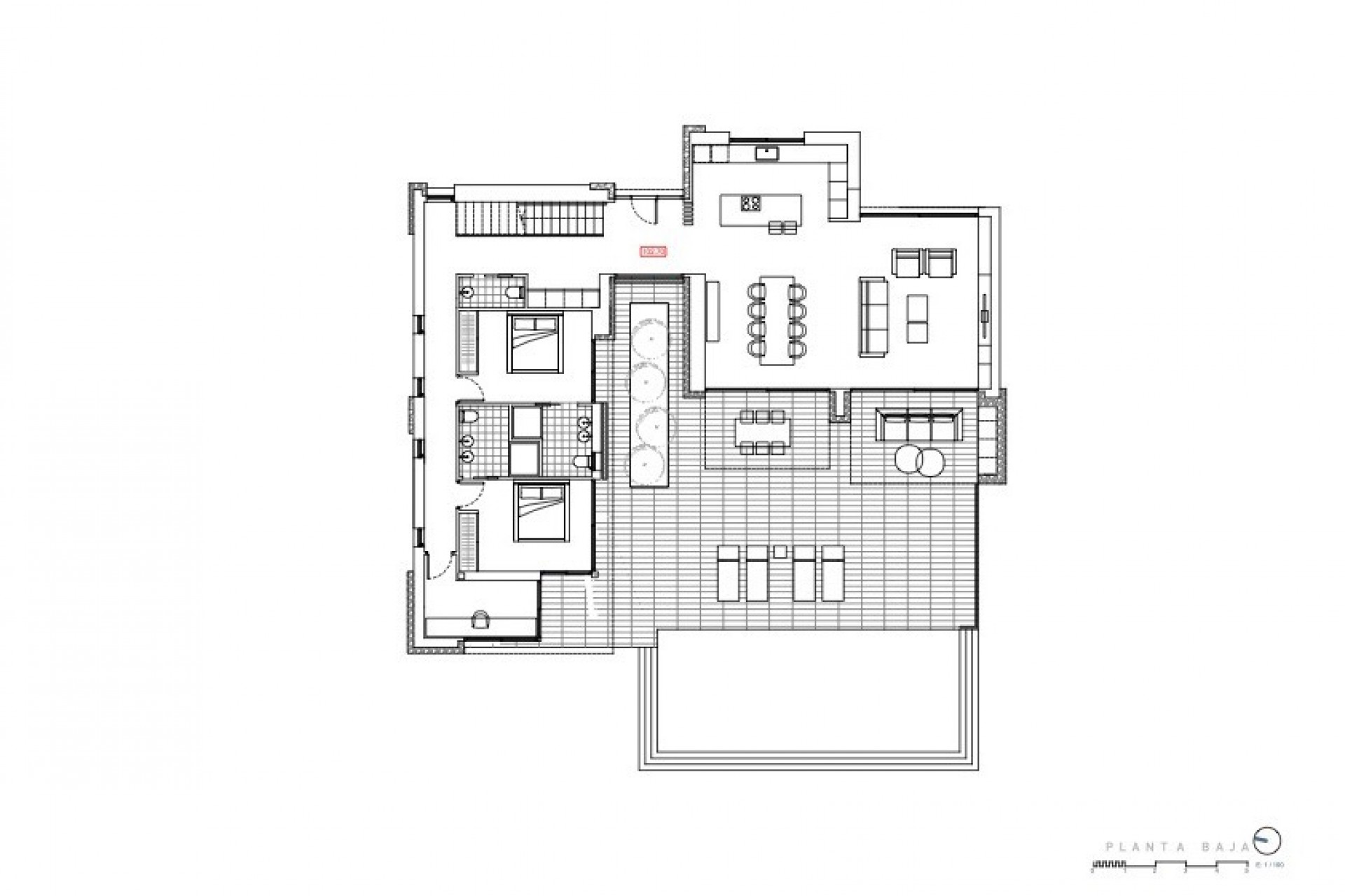
Exquisite 3-Schlafzimmer-Villa mit Meerblick in San Jaime, Moraira In der ruhigen Umgebung von San Jaime gelegen, vereint diese beeindruckende Residenz moderne Eleganz, Komfort und atemberaubende Meerblicke. Die Immobilie befindet sich in einer ruhigen Sackgasse und bietet außergewöhnliche Privatsphäre, gleichzeitig aber Nähe zu allen Annehmlichkeiten. Der San Jaime Golfplatz und der bekannte Supermarkt Pepe La Sal sind nur wenige Minuten entfernt und sorgen für Freizeit und Komfort in unmittelbarer Nähe. Die Villa erstreckt sich über drei Ebenen und verbindet Funktionalität mit architektonischem Feinsinn. Im Eingangsbereich befinden sich die Garage, der Hauswirtschaftsraum und der Technikraum, die praktischen Nutzen mit Stil verbinden. Die Hauptebene bietet einen offenen Wohn-, Ess- und Küchenbereich voller natürlichem Licht – ideal für Familie und Gäste. Zwei großzügige Schlafzimmer en suite befinden sich ebenfalls auf dieser Ebene und bieten Komfort und Privatsphäre. Der Außenbereich ist so gestaltet, dass das Leben im Freien maximiert wird, mit Terrasse und privatem Pool, perfekt zum Entspannen, Essen oder einfach, um das mediterrane Klima zu genießen. Das Obergeschoss ist der luxuriösen Master-Suite vorbehalten, mit eigenem Bad und Zugang zu einer großen privaten Terrasse, von der aus spektakuläre Sonnenaufgänge und Sonnenuntergänge genossen werden können. Derzeit im Bau – Struktur fertiggestellt, sehr bald bezugsfertig, steht diese Villa für Qualität und Raffinesse und bietet die perfekte Balance zwischen modernem Wohnen und dem zeitlosen Charme der Lage. Hauptmerkmale: Erstklassige Lage in San Jaime, MorairaGrundstück: 1.021 m²Bebaut: 351 m² plus 408 m² Nebengebäude3 Schlafzimmer und 4 BadezimmerMeerblickAuf drei Ebenen verteiltOffener Wohn-, Ess- und KüchenbereichPrivater Pool und große TerrassenGarage, Hauswirtschaftsraum und TechnikraumIm Bau – Struktur fertiggestellt, sehr bald bezugsfertig Kontaktieren Sie uns noch heute, um eine Besichtigung zu vereinbaren und diese außergewöhnliche Villa zu entdecken.