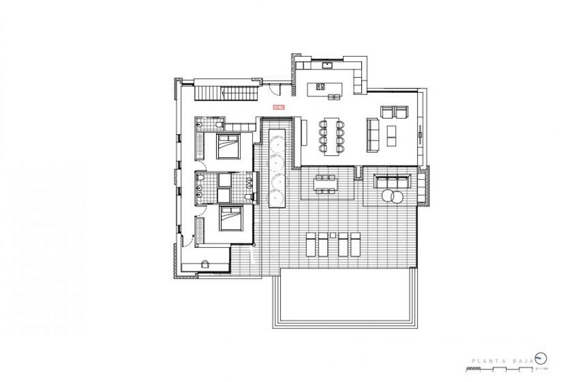
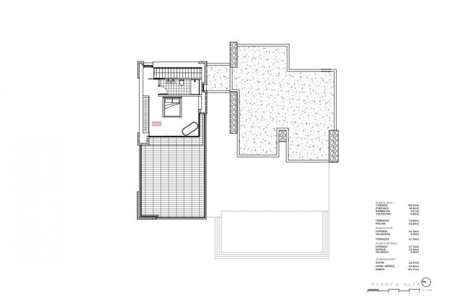
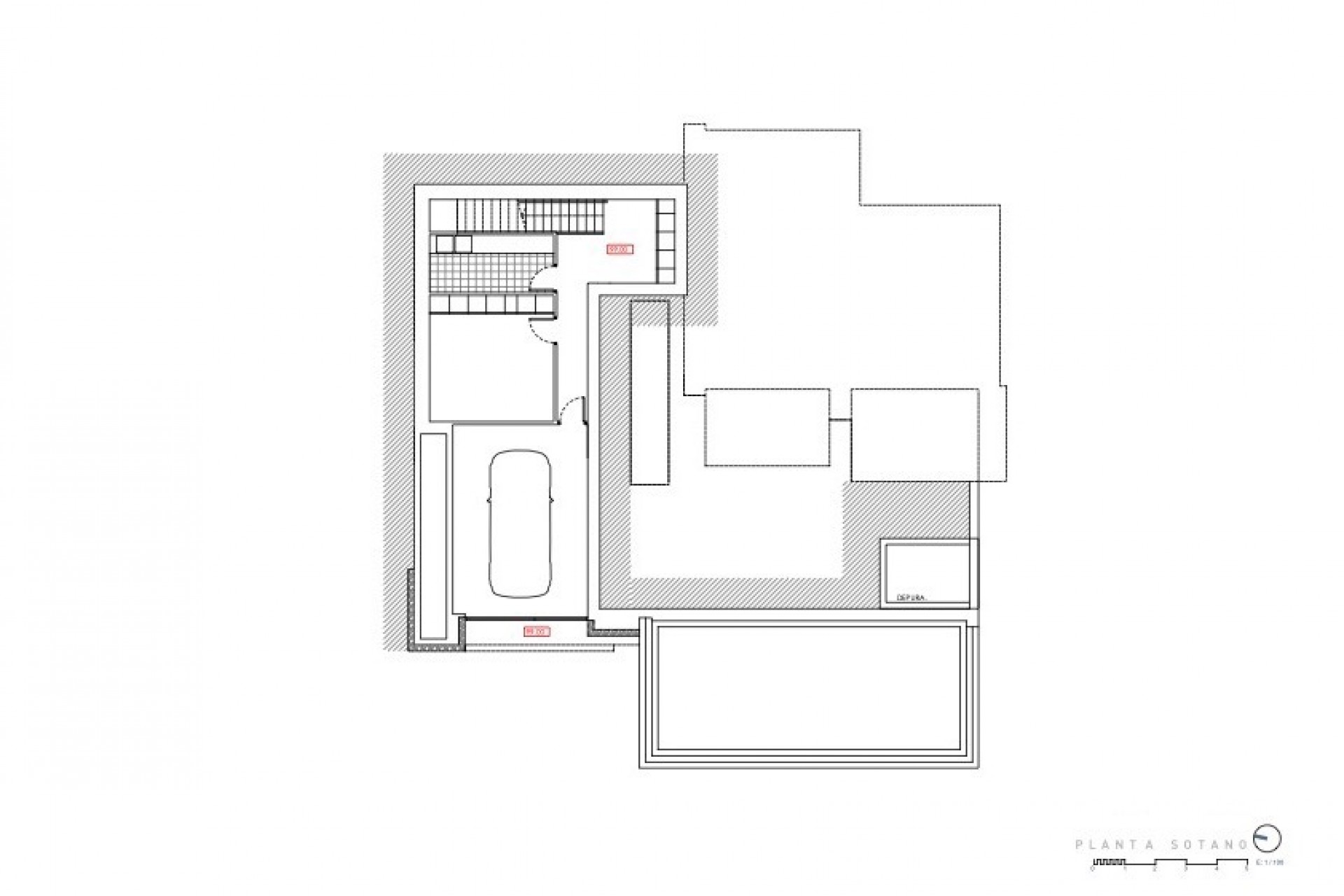
Villa Exquise de 3 Chambres avec Vue sur la Mer à San Jaime, Moraira Située dans le cadre paisible de San Jaime, cette superbe résidence allie élégance moderne, confort et vues imprenables sur la mer. Dans un cul-de-sac tranquille, la propriété offre une intimité exceptionnelle tout en restant proche de toutes les commodités. Le parcours de golf de San Jaime et le célèbre supermarché Pepe La Sal sont à quelques minutes seulement, garantissant loisirs et confort au quotidien. La villa est répartie sur trois niveaux, mariant fonctionnalité et raffinement architectural. Au niveau d’entrée, vous trouverez le garage, la buanderie et la salle technique, conçus pour allier praticité et confort. Le niveau principal propose un espace ouvert salon-salle à manger-cuisine baigné de lumière naturelle, idéal pour recevoir et profiter en famille. Deux chambres en suite spacieuses se trouvent également à cet étage, offrant confort et intimité pour la famille ou les invités. L’extérieur est pensé pour optimiser la vie en plein air, avec une terrasse et une piscine privée offrant un espace parfait pour se détendre, dîner ou simplement profiter du climat méditerranéen. L’étage supérieur est consacré à la luxueuse suite parentale, avec salle de bain attenante et accès à une grande terrasse privée pour admirer des levers et couchers de soleil spectaculaires. Actuellement en construction – structure terminée, prête à emménager très bientôt, cette résidence reflète un engagement envers la qualité et le raffinement, offrant un équilibre parfait entre vie contemporaine et charme intemporel. Caractéristiques principales : Emplacement privilégié à San Jaime, MorairaTerrain : 1.021 m²Surface construite : 351 m² plus 408 m² auxiliaires3 chambres et 4 salles de bainsVues sur la merRépartie sur trois niveauxSalon, salle à manger et cuisine ouvertePiscine privée et grandes terrassesGarage, buanderie et salle techniqueEn construction – structure terminée, prête à emménager très bientôt Contactez-nous dès aujourd’hui pour organiser une visite et découvrir cette exceptionnelle villa.