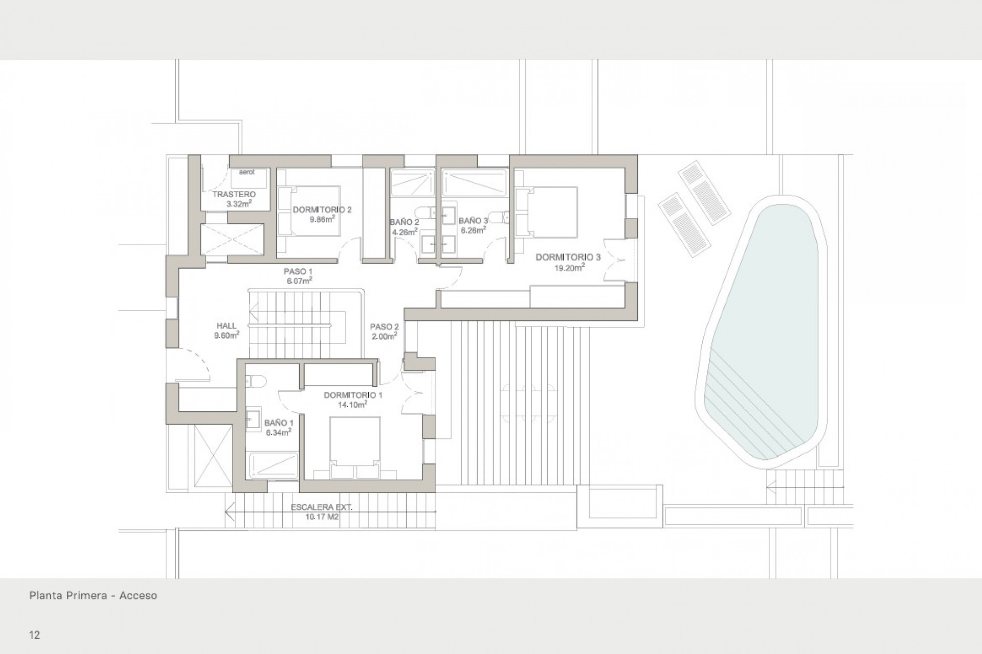
Ibiza-style villa project with building permit 950 metres from the beach for sale in Benissa.Discover this beautiful Ibiza-style villa, located in the quiet villa district of Benissa, within walking distance of the idyllic Cala Baladrar beach.The villa is spread over two floors and stands out for its well-maintained architecture, Mediterranean design and high-quality finishes. The villa has a private swimming pool, spacious outdoor areas and a layout designed to maximise comfort, natural light and use of space.You enter the upper floor into a spacious hall, on this floor there are three spacious double bedrooms, each with an en-suite bathroom. The ground floor houses the living area, consisting of a spacious living-dining room with an open kitchen with a cooking island and a laundry room. For added comfort, there is a fourth bedroom with an en-suite bathroom on this floor. Both the living room and the bedroom offer direct access to the terrace by the pool, which also has a barbecue area. In addition, the villa also has a fully equipped outdoor bathroom, a storage room and parking space for two cars. For optimal comfort, both hot/cold air conditioning and underfloor heating are installed, which can be controlled via the AIRZONE system.In addition, the project already has a building permit, so construction can start immediately.A unique opportunity to own a beautiful Ibiza villa within walking distance of the beach and a short distance from both Moraira and Calpe!